Bénéficiez des services de nos partenaires locaux soigneusement sélectionnés
pour vous accompagner dans votre parcours d'achat immobilier

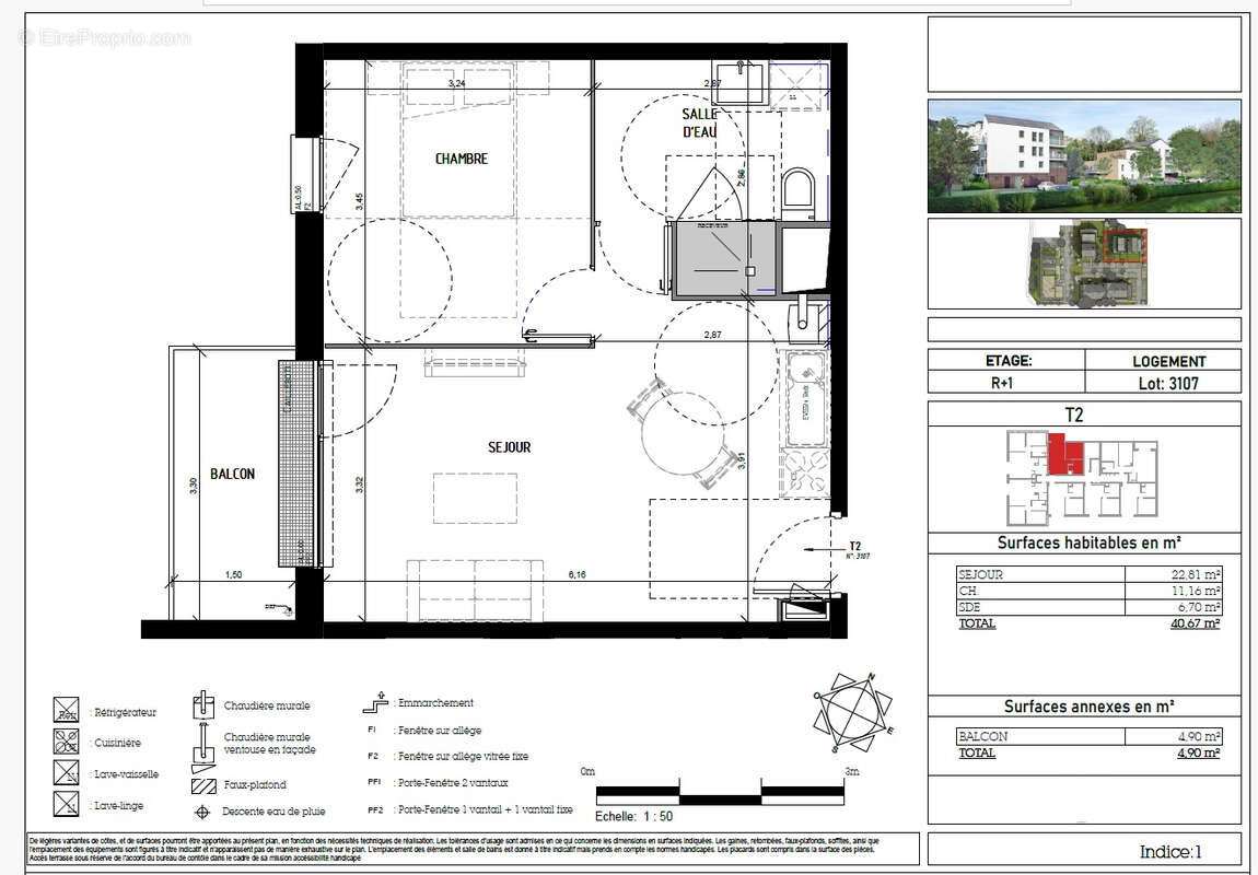
Appartement val de reuil 2 pièce(s) 40 m2

— Val-De-Reuil 27100 —
137 751 €
40 m²
2 pièces
parkingbalcon/terrasseascenseur

Nos partenaires locaux
VAL-DE-REUIL ? T2 AVEC BALCON ET PARKING A moins de 5 minutes de la gare SNCF, des commerces et des établissements scolaires, découvrez ce bel appartement T2 situé dans un immeuble moderne avec ascenseur, au coeur d'un quartier calme et en plein renouveau. D'une superficie d'environ 40 m², il se compose d'un séjour lumineux avec cuisine ouverte, d'une chambre confortable, d'une salle d'eau avec WC, ainsi que d'un balcon de 4 m² idéal pour profiter des beaux jours. Une place de parking privative complète ce bien. L'appartement, conforme aux normes PMR, offre une excellente performance énergétique (classe A ou B), garantissant confort et économies au quotidien. Les futurs acquéreurs bénéficieront de nombreux avantages financiers : TVA à 5,5 %, frais de notaire réduits (2.3%), éligibilité au Prêt à Taux Zéro et prime de 5 000 euros accordée par l'agglomération Seine-Eure. Aucun travaux à prévoir et un faible coût d'énergie pour une acquisition en toute sérénité. Proposé à partir de 135 000 euros, cet appartement permet de devenir propriétaire pour environ 600 euros/mois* (hors assurance de prêt). Un bien idéal pour une première acquisition dans un environnement agréable, à proximité directe de l'autoroute A13 (Paris/Rouen). *Exemple pour l'achat d'un 2 pièces avec conditions d'achat en résidence principale et de ressources. Photos non contractuelles
Voir plus

Référence: 11735
Honoraires à la charge du vendeur.
Barème des honoraires

Prêt immobilier

Vous souhaitez connaître votre capacité d’emprunt et trouver le meilleur crédit immobilier ?
Réaliser une simulation gratuite

Appartement à VAL-DE-REUIL
Appartement à VAL-DE-REUIL
Appartement à VAL-DE-REUIL
Appartement à VAL-DE-REUIL
Appartement à VAL-DE-REUIL
Appartement à VAL-DE-REUIL
Appartement à VAL-DE-REUIL
Ce site est protégé par reCAPTCHA la Politique de confidentialité et les Conditions d’utilisation de Google s’appliquent.
Obtenir un prêt immobilier au meilleur taux ?

En poursuivant votre navigation sans modifier vos paramètres, vous acceptez l'utilisation de cookies susceptibles de réaliser des statistiques de visite. Cliquez ici pour plus d'informations