Bénéficiez des services de nos partenaires locaux soigneusement sélectionnés
pour vous accompagner dans votre parcours d'achat immobilier

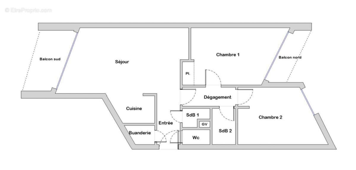
Appartement traversant 3 pièces avec balcons - le balcon de villard

— Villard-De-Lans 38250 —
209 000 €
63 m²
3 pièces
ascenseur

Nos partenaires locaux
En exclusivité. Venez découvrir ce T3 de 63m2 au 6ème étage avec ascenseur au sein de la copropriété Le Balcon de Villard, secteur côte 2000. De part sa localisation, ce bien peut convenir à de la résidence principale/secondaire ou de l'investissement locatif (6 à 8 couchage possible). Il se compose de : - Un espace de vie Cuisine/séjour donnant sur un balcon de 7m2 avec vue panoramique - 2 salle d'eau - 2 grandes chambres de 12 et 16m2 dont une avec balcon - un hall d'entrée avec buanderie - un WC indépendant Un casier à SKI au 2ème étage complète ce bien. * Visite virtuelle disponible* Les charges de copropriétés comprennent également le chauffage, l'eau chaude et l'eau froide. Traversant Sud / Nord, vous profiterez d'une belle luminosité et d'une vue panoramique sur les montagnes. Idéalement placé à 150m des pistes skiables et de la station de Villard de Lans, vous serez à proximité de toutes commodités. Pour toutes informations complémentaires, contactez nous. Copropriété de 3043 lots - dont 974 lots habitation. (Pas de procédure en cours). Charges annuelles : 2408 euros.
Voir plus

Référence: 4947
Bien en copropriété. Nombre de lots : 3043. Charges de copropriété : 2408 €.
Honoraires à la charge du vendeur.
Barème des honoraires
DPE
A
B
C
D
E
F
G
GES
A
B
C
D
E
F
G

Prêt immobilier

Vous souhaitez connaître votre capacité d’emprunt et trouver le meilleur crédit immobilier ?
Réaliser une simulation gratuite

Appartement à VILLARD-DE-LANS
Appartement à VILLARD-DE-LANS
Appartement à VILLARD-DE-LANS
Appartement à VILLARD-DE-LANS
Appartement à VILLARD-DE-LANS
Appartement à VILLARD-DE-LANS
Appartement à VILLARD-DE-LANS
Appartement à VILLARD-DE-LANS
Appartement à VILLARD-DE-LANS
Appartement à VILLARD-DE-LANS
Appartement à VILLARD-DE-LANS
Appartement à VILLARD-DE-LANS
Ce site est protégé par reCAPTCHA la Politique de confidentialité et les Conditions d’utilisation de Google s’appliquent.
Obtenir un prêt immobilier au meilleur taux ?

En poursuivant votre navigation sans modifier vos paramètres, vous acceptez l'utilisation de cookies susceptibles de réaliser des statistiques de visite. Cliquez ici pour plus d'informations