Bénéficiez des services de nos partenaires locaux soigneusement sélectionnés
pour vous accompagner dans votre parcours d'achat immobilier

Appartement 111m² à thonon-les-bains

— Thonon-Les-Bains 74200 —
829 000 €
111 m²
4 pièces
parkingbalcon/terrasseascenseur

Nos partenaires locaux
Iad France - Pierre Magerand ([Coordonnées masquées]) vous propose : Appartement T4 avec Terrasse à Thonon-les-Bains.

Au cOEur de la résidence contemporaine L'Éloge, située avenue Jules Ferry, découvrez une adresse qui conjugue élégance architecturale et qualité de vie préservée. À seulement quelques minutes à pied du centre-ville et des rives du Léman, cette résidence intimiste offre un cadre verdoyant et apaisé.

Un appartement raffiné :
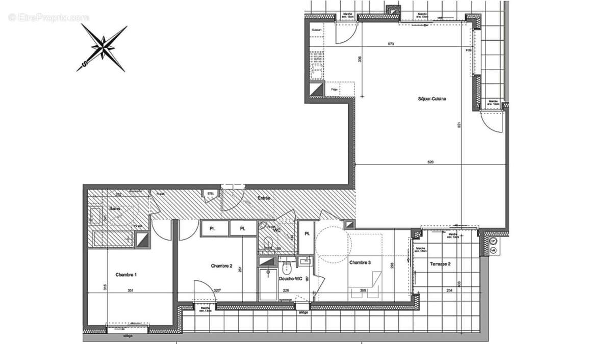
Situé au 5 ème étage, cet appartement T4 de 110 m² environ habitables se prolonge par une terrasse de 70 m² environ.

- Séjour / cuisine lumineux de 53 m² environ ouvert sur l'extérieur.
- Trois chambres confortables dont une suite parentale.
- Salle de bains moderne et WC séparés.
- 2 garages.

Belles prestations :
- Menuiseries PVC haute performance, double vitrage.
- Volets roulants électriques.
- Chauffage collectif au gaz.
- Résidence sécurisée avec ascenseur, visiophone et accès Vigik.

L'art de vivre à Thonon :
- Commerces, écoles et services à proximité immédiate.
- Port de Thonon et rives du Léman accessibles en quelques minutes.
- Gare SNCF & Léman Express à 12 minutes pour rejoindre rapidement Genève ou Lausanne.

Cet appartement conjugue modernité, confort et situation idéale, au cOEur d'une résidence élégante et durable.

N'hésitez pas à me contacter pour plus d'informations ou pour organiser une visite.

Honoraires d'agence à la charge du vendeur. Bien non soumis au DPE. Les informations sur les risques auxquels ce bien est exposé sont disponibles sur le site Géorisques : www.georisques.gouv.fr. La présente annonce immobilière a été rédigée sous la responsabilité éditoriale de M. Pierre Magerand EI (ID 86098), mandataire indépendant en immobilier (sans détention de fonds), agent commercial de la SAS I@D France immatriculé au RSAC de Cusset sous le numéro 938729175, titulaire de la carte de démarchage immobilier pour le compte de la société I@D France SAS.
Retrouvez tous nos biens sur notre site internet. www.iadfrance.fr.
Informations LOI ALUR :
Honoraires charge vendeur. (gedeon_6727_31491509)
Voir plus

Référence: 1795201-11
Honoraires à la charge du vendeur.

Prêt immobilier

Vous souhaitez connaître votre capacité d’emprunt et trouver le meilleur crédit immobilier ?
Réaliser une simulation gratuite

Photo 1 - Appartement à THONON-LES-BAINS
Photo 1
Photo 2 - Appartement à THONON-LES-BAINS
Photo 2
Photo 3 - Appartement à THONON-LES-BAINS
Photo 3
Photo 4 - Appartement à THONON-LES-BAINS
Photo 4
Photo 5 - Appartement à THONON-LES-BAINS
Photo 5
Photo 6 - Appartement à THONON-LES-BAINS
Photo 6
Photo 7 - Appartement à THONON-LES-BAINS
Photo 7
Photo 8 - Appartement à THONON-LES-BAINS
Photo 8
Ce site est protégé par reCAPTCHA la Politique de confidentialité et les Conditions d’utilisation de Google s’appliquent.
Obtenir un prêt immobilier au meilleur taux ?

En poursuivant votre navigation sans modifier vos paramètres, vous acceptez l'utilisation de cookies susceptibles de réaliser des statistiques de visite. Cliquez ici pour plus d'informations