Bénéficiez des services de nos partenaires locaux soigneusement sélectionnés
pour vous accompagner dans votre parcours d'achat immobilier

Appartement 42m² à les pavillons-sous-bois

— Les Pavillons-Sous-Bois 93320 —
175 500 €
42 m²
2 pièces
parking

Nos partenaires locaux
Iad France - Ike Georges A Crine vous propose : Souplex T2 de 42 m² avec jardin - Les Pavillons-sous-Bois

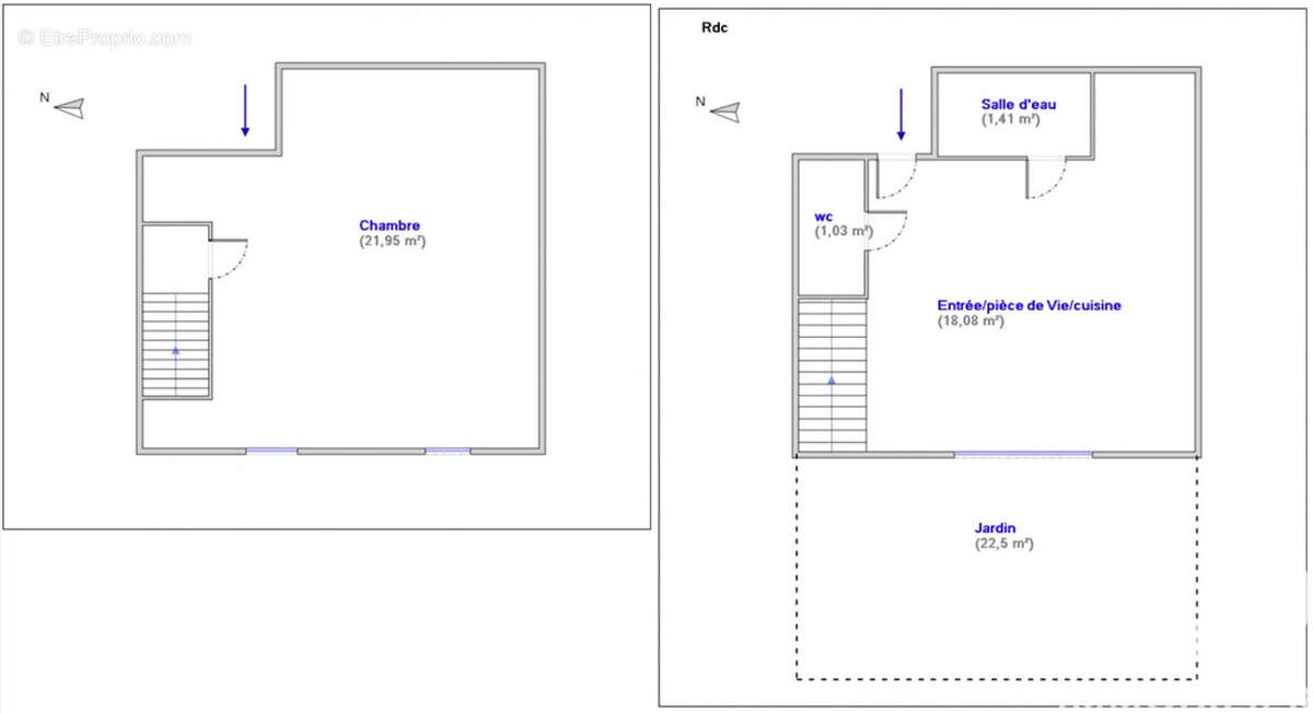
Situé dans un quartier pavillonnaire calme et recherché de Pavillons-sous-Bois, ce charmant rez-de-jardin de 42 m² offre un cadre de vie agréable et fonctionnel et se compose d'un séjour lumineux avec coin cuisine, d'une salle d'eau et de WC séparés.

Au sous-sol, vous trouverez une spacieuse chambre de 22 m² avec rangements.
À l'extérieur, un jardin de 22 m² idéal pour les beaux jours, donnant sur la rue, ainsi que d'une place de parking privative.

Proche de toutes commodités (transports, commerces, écoles), cet appartement conviendra aussi bien à des primo-accédants qu'à des investisseurs.

Contactez-moi dès aujourd'hui pour organiser une visite !

La presente annonce immobiliere vise 2 lots situés dans une copropriété de 2 lots au total et ne faisant l'objet d'aucune procédure en cours citée à l'article L. 721-1 du code de la construction et de l'habitation. Montant moyen mensuel de charges déclaré par le vendeur : 58.33¤ par mois (soit 700 ¤ annuel). Honoraires d'agence à la charge du vendeur.
Information d'affichage énergétique sur ce bien : classe ENERGIE D indice 245 et classe CLIMAT B indice 7. Les informations sur les risques auxquels ce bien est exposé, y compris l'obligation légale de débroussaillement, sont disponibles sur le site Géorisques : http://www.georisques.gouv.fr.
La présente annonce immobilière a été rédigée sous la responsabilité éditoriale de M Ike Georges A Crine mandataire indépendant en immobilier (sans détention de fonds), agent commercial de la SAS I@D France immatriculé au RSAC de AURILLAC CEDEX sous le numéro 921613683, titulaire de la carte de démarchage immobilier pour le compte de la société I@D France SAS.
Informations LOI ALUR :
Soumis au régime de copropriété.
Nombre de lots : 2.
Quote part annuelle(moyenne) : 700 euros.
Honoraires charge vendeur. (gedeon_6727_32096341)
Voir plus

Référence: 1878302
Bien en copropriété. Nombre de lots : 2. Charges de copropriété : 700 €.
Honoraires à la charge du vendeur.
DPE
A
B
C
D
E
F
G
GES
A
B
C
D
E
F
G

Prêt immobilier

Vous souhaitez connaître votre capacité d’emprunt et trouver le meilleur crédit immobilier ?
Réaliser une simulation gratuite

Photo 1 - Appartement à LES PAVILLONS-SOUS-BOIS
Photo 1
Photo 2 - Appartement à LES PAVILLONS-SOUS-BOIS
Photo 2
Photo 3 - Appartement à LES PAVILLONS-SOUS-BOIS
Photo 3
Photo 4 - Appartement à LES PAVILLONS-SOUS-BOIS
Photo 4
Photo 5 - Appartement à LES PAVILLONS-SOUS-BOIS
Photo 5
Photo 6 - Appartement à LES PAVILLONS-SOUS-BOIS
Photo 6
Photo 7 - Appartement à LES PAVILLONS-SOUS-BOIS
Photo 7
Ce site est protégé par reCAPTCHA la Politique de confidentialité et les Conditions d’utilisation de Google s’appliquent.
Obtenir un prêt immobilier au meilleur taux ?

En poursuivant votre navigation sans modifier vos paramètres, vous acceptez l'utilisation de cookies susceptibles de réaliser des statistiques de visite. Cliquez ici pour plus d'informations