Maison de 2008 prête à vivre, 4 chambres, à 25 min du mans

— Saint-Celerin 72110 —
197 000 €
117 m² / 1 531 m²
6 pièces
parkingbalcon/terrassejardin

Karim Téterel - EXCLUSIVITÉ CAPIFRANCE

C'est avec plaisir que je vous présente ce pavillon construit en 2008, d'une superficie d'environ 117 m², situé sur la commune de Saint-Célerin, à seulement 8 minutes de Bonnétable, 13 minutes de Connerré, et 25 minutes du Mans.

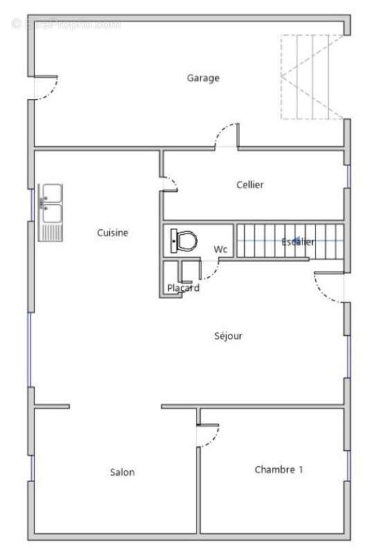
La maison se compose, au rez-de-chaussée, d'une entrée ouvrant sur un grand salon-séjour équipé d'un poêle à bois, d'une cuisine ouverte aménagée et équipée, WC, d'une chambre ainsi que d'une buanderie. Un garage attenant complète ce niveau.

À l'étage, le palier dessert trois chambres, une salle de bains avec WC et un dressing.

Côté énergétique, le chauffage est assuré par des radiateurs électriques et un poêle à bois. Le bien dispose d'un DPE classé C, gage d'une faible consommation électrique. L'assainissement se fait par une fosse toutes eaux. Un adoucisseur d'eau est installé, la fibre est disponible et la taxe foncière est attractive.

À l'extérieur, vous profiterez d'un terrain plat, entièrement clos et sans vis-à-vis, d'une superficie de 1 500 m². L'accès se fait par un portail électrique. Une belle terrasse de 48 m² équipée d'un store ban permet de profiter pleinement des beaux jours. Un carport offre la possibilité de stationner deux véhicules et un bûcher extérieur vient compléter l'ensemble.

N'hésitez pas à me contacter pour plus d'informations ou pour organiser une visite.

----------------------------------------

Vous devez vendre votre bien avant d'acheter ? Faites évaluer votre propriété gratuitement et sans engagement pour déterminer sa juste valeur. Ensemble, nous définirons la meilleure stratégie de vente et une ligne de conduite claire et précise pour optimiser votre projet.

Les honoraires sont à la charge du vendeur.
Les informations sur les risques auxquels ce bien est exposé sont disponibles sur le site Géorisques : www. georisques. gouv. fr.

Réseau Immobilier CAPIFRANCE - Votre agent commercial (RSAC N°927 574 160 - Greffe de LE MANS) Karim TETEREL Entrepreneur Individuel [Coordonnées masquées] - Réf.928305
Voir plus

Référence: 340932082470
Honoraires à la charge du vendeur.
DPE
A
B
C
D
E
F
G
GES
A
B
C
D
E
F
G

Prêt immobilier

Vous souhaitez connaître votre capacité d’emprunt et trouver le meilleur crédit immobilier ?
Réaliser une simulation gratuite

Maison à SAINT-CELERIN
Maison à SAINT-CELERIN
Maison à SAINT-CELERIN
Maison à SAINT-CELERIN
Maison à SAINT-CELERIN
Maison à SAINT-CELERIN
Maison à SAINT-CELERIN
Maison à SAINT-CELERIN
Maison à SAINT-CELERIN
Maison à SAINT-CELERIN
Maison à SAINT-CELERIN
Maison à SAINT-CELERIN
Maison à SAINT-CELERIN
Maison à SAINT-CELERIN
Maison à SAINT-CELERIN
Maison à SAINT-CELERIN
Maison à SAINT-CELERIN
Maison à SAINT-CELERIN
Maison à SAINT-CELERIN
Ce site est protégé par reCAPTCHA la Politique de confidentialité et les Conditions d’utilisation de Google s’appliquent.
Obtenir un prêt immobilier au meilleur taux ?

En poursuivant votre navigation sans modifier vos paramètres, vous acceptez l'utilisation de cookies susceptibles de réaliser des statistiques de visite. Cliquez ici pour plus d'informations