Maison 100m² à sartrouville

— Sartrouville 78500 —
519 000 €
100 m² / 496 m²
5 pièces
parkingjardin

SARTROUVILLE – MAISON INDIVIDUELLE DE CENTRE-VILLE – À RÉNOVER – 100m² – 3 CHAMBRES - POSSIBILITÉ D'AGRANDISSEMENT

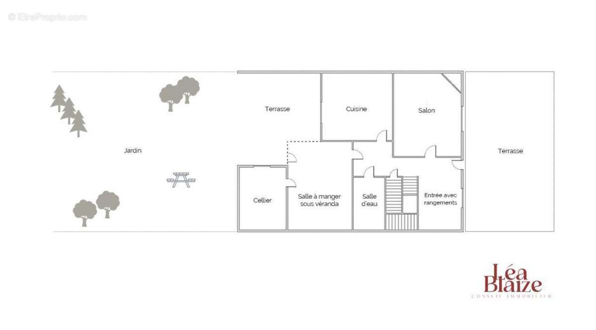
Léa BLAIZE consultante indépendante Efficity, vous propose cette maison individuelle (non mitoyenne) d'une surface de 100m², installée en centre-ville, à proximité immédiate des commerces, des transports et des bords de Seine.

REZ-DE-CHAUSSÉE
- entrée avec rangements, salon, cuisine, et salle à manger sous véranda, ouverte sur la terrasse ;
- ce niveau comporte également une salle d'eau avec wc et une pièce complémentaire pour rangements (cellier).

1ER ÉTAGE
- 3 grandes chambres
- 1 salle de bains avec wc ;
- possibilité d'une quatrième chambre en rez-de-chaussée

EXTÉRIEURS
- terrasse à l'avant de la maison, pouvant accueillir un véhicule ;
- terrasse à l'arrière de la maison, orientée Ouest qui prolonge les pièces de vie du rez-de-chaussée ;
- vaste jardin arboré ;
- parcelle de terrain de 496m² avec possibilité d'un agrandissement à l'arrière de la maison (constructible).

SOUS-SOL
- servant actuellement de stockage / espace de rangement complémentaire, buanderie et cave ;
- espace transformable.
Les informations sur les risques auxquels ce bien est exposé sont disponibles sur le site Georisque : georisques. gouv. fr
Léa Blaize - EI - est Agent Commercial mandataire en immobilier, immatriculé au Registre Spécial des Agents Commerciaux du Tribunal de Commerce de Versailles sous le n°988165791.
Siège social du mandant : effiCity, 48 avenue de Villiers - 75017 PARIS - Société par Actions Simplifiée, société au capital de 132 373,05 euros, immatriculée au RCS Paris 497 617 746 et titulaire de la Carte professionnelle CPI 75[Coordonnées masquées]02 025 - CCI Paris IDF - Caisse de Garantie : GALIAN Assurances 89 rue de la Boétie 75008 Paris
Voir plus

Référence: 196938
Honoraires à la charge du vendeur.
Barème des honoraires
DPE
A
B
C
D
E
F
G
GES
A
B
C
D
E
F
G

Prêt immobilier

Vous souhaitez connaître votre capacité d’emprunt et trouver le meilleur crédit immobilier ?
Réaliser une simulation gratuite

Maison à SARTROUVILLE
Maison à SARTROUVILLE
Maison à SARTROUVILLE
Maison à SARTROUVILLE
Maison à SARTROUVILLE
Maison à SARTROUVILLE
Maison à SARTROUVILLE
Maison à SARTROUVILLE
Maison à SARTROUVILLE
Maison à SARTROUVILLE
Maison à SARTROUVILLE
Maison à SARTROUVILLE
Maison à SARTROUVILLE
Maison à SARTROUVILLE
Maison à SARTROUVILLE
Maison à SARTROUVILLE
Maison à SARTROUVILLE
Maison à SARTROUVILLE
Maison à SARTROUVILLE
Ce site est protégé par reCAPTCHA la Politique de confidentialité et les Conditions d’utilisation de Google s’appliquent.
Obtenir un prêt immobilier au meilleur taux ?

En poursuivant votre navigation sans modifier vos paramètres, vous acceptez l'utilisation de cookies susceptibles de réaliser des statistiques de visite. Cliquez ici pour plus d'informations