Maison 92m² à eze

— Eze 06360 —
899 000 €
92 m² / 423 m²
3 pièces
parkingbalcon/terrassejardinpiscine

06360 ÈZE – PROCHE DU VILLAGE - VILLA DE 92 M² DANS PETIT DOMAINE SÉCURISÉ AVEC PISCINE– 2 CHAMBRES - TERRASSE ET JARDIN AVEC VUE IMPRENABLE SUR LA MER

Efficity, l'agence qui estime votre bien en ligne, vous propose cette très belle maison idéalement située entre la Grande et la Moyenne Corniche, à proximité immédiate du village d'Èze.

L' atout majeur de cette maison est sa proximité du village et sa vue dégagée sur la mer Méditerranée, une grande terrasse et un jardin en restanques, dans un environnement calme et parfaitement entretenu.

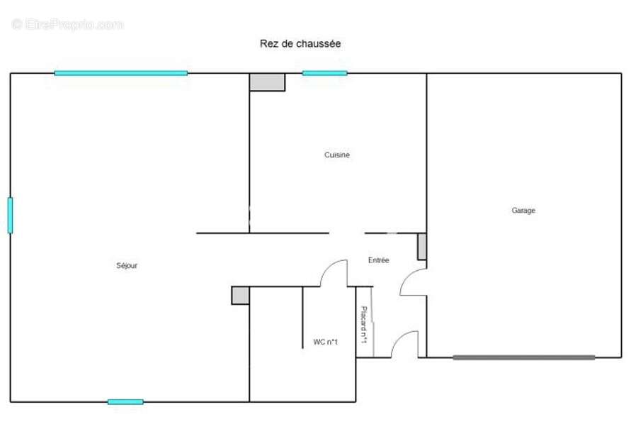
Au rez-de-chaussée, une pièce de vie lumineuse s'ouvre sur la terrasse de 20 m².
La cuisine entièrement équipée bénéficie d'un accès direct au jardin et peut être ouverte sur le séjour pour créer un espace encore plus convivial.
On y trouve également un WC invité.

À l'étage :
•une suite parentale avec balcon et vue mer, ainsi qu'une vaste salle de bain privative
•une deuxième chambre équipée d'un grand dressing avec miroir
•une salle d'eau indépendante et un WC séparé.

Le garage, accessible depuis l'intérieur, la cour et le jardin, dispose d'une porte motorisée et d'une mezzanine offrant un vaste espace de rangement.
Sa disposition permet d'envisager facilement la création d'une pièce supplémentaire.

La maison est en parfait état, prête à être habitée sans aucun travaux.
Elle fait partie d'une copropriété tranquille, sans travaux prévus.
DPE : C – Exposition Est.

Équipements :
•Climatisation réversible
•Chaudière à condensation et radiateurs gaz
•Store banne motorisé avec éclairage LED et capteur de vent automatique
•Volets roulants électriques
•Luminaires à intensité variable

Un bien rare dans un environnement recherché. Contactez-nous sans tarder pour planifier une visite.

Renseignements: Amélie Vedrine [Coordonnées masquées]
Les informations sur les risques auxquels ce bien est exposé sont disponibles sur le site Georisque : georisques. gouv. fr
Amélie Vedrine - EI - est Agent Commercial mandataire en immobilier, immatriculé au Registre Spécial des Agents Commerciaux du Tribunal de Commerce de Nice sous le n°900236894.
Siège social du mandant : effiCity, 48 avenue de Villiers - 75017 PARIS - Société par Actions Simplifiée, société au capital de 132 373,05 euros, immatriculée au RCS Paris 497 617 746 et titulaire de la Carte professionnelle CPI 75[Coordonnées masquées]02 025 - CCI Paris IDF - Caisse de Garantie : GALIAN Assurances 89 rue de la Boétie 75008 Paris
Voir plus

Référence: 197758
Bien en copropriété. Nombre de lots : 70. Charges de copropriété : 103 €.
Honoraires à la charge du vendeur.
Barème des honoraires
DPE
A
B
C
D
E
F
G
GES
A
B
C
D
E
F
G

Prêt immobilier

Vous souhaitez connaître votre capacité d’emprunt et trouver le meilleur crédit immobilier ?
Réaliser une simulation gratuite

Maison à EZE
Maison à EZE
Maison à EZE
Maison à EZE
Maison à EZE
Maison à EZE
Maison à EZE
Maison à EZE
Maison à EZE
Maison à EZE
Maison à EZE
Maison à EZE
Maison à EZE
Maison à EZE
Maison à EZE
Maison à EZE
Ce site est protégé par reCAPTCHA la Politique de confidentialité et les Conditions d’utilisation de Google s’appliquent.
Obtenir un prêt immobilier au meilleur taux ?

En poursuivant votre navigation sans modifier vos paramètres, vous acceptez l'utilisation de cookies susceptibles de réaliser des statistiques de visite. Cliquez ici pour plus d'informations