Bénéficiez des services de nos partenaires locaux soigneusement sélectionnés
pour vous accompagner dans votre parcours d'achat immobilier

Commerce 898m² à macon

— Macon 71000 —
1 400 000 €
898 m²

Nos partenaires locaux
EN EXCLUSIVITÉ – BÂTIMENT ARTISANAL NEUF – MACON (71000) – EMPLACEMENT STRATÉGIQUE Autoroute A6/A40
A VENDRE OU A LOUER
Découvrez ce bâtiment artisanal flambant neuf (construction 2023-2024) d'une surface d'environ 900 m² au sol , édifié sur 2 320 m² de terrain, situé sur la commune de Mâcon (71000).
Idéalement implanté à proximité immédiate de la gare, de l'autoroute A6/A40 et de la gare TGV, il bénéficie d'un emplacement stratégique offrant une excellente visibilité et accessibilité.

Entièrement viabilisé (électricité, eau, fibre optique), ce bien est clé en main et parfaitement équipé pour accueillir votre future activité :
Quelques travaux extérieurs restent à finaliser
(accompagnement possible).

? 4 chambres froides
? Vestiaires et sanitaires modernes
? Bureaux lumineux et fonctionnels
? Plusieurs sas de réception marchandises
? Espaces conçus pour le confort et l'efficacité de vos collaborateurs

Tout est prêt pour installer votre entreprise immédiatement dans un environnement moderne, performant et parfaitement adapté aux professionnels exigeants.
Idéal investisseurs également.

? Emplacement idéal: sur un axe passant, proche des grands axes autoroutiers et des transports (gare et TGV).
? Construction récente 2023-2024


? Pour tout renseignement, contactez :
Malika ZIRANE – TERACYTE Immobilier
? Enregistrée au RSAC de Bourg-en-Bresse sous le n° 522 842 186




Voir plus

Référence: 20020-TERACYTE2
Honoraires à la charge du vendeur.
Barème des honoraires

Prêt immobilier

Vous souhaitez connaître votre capacité d’emprunt et trouver le meilleur crédit immobilier ?
Réaliser une simulation gratuite

BATIMENT ARTISANAL NEUF - Commerce à MACON
BATIMENT ARTISANAL NEUF
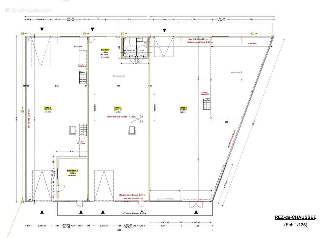
Rdc le? plans ont évolué et des ajustements ont été réalisés - Commerce à MACON
Rdc le? plans ont évolué et des ajustements ont été réalisés
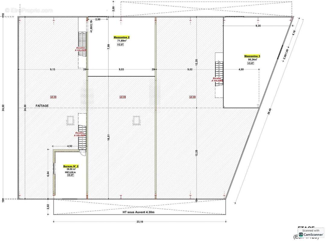
étage Les plans ont évolué, nouveaux agencements - Commerce à MACON
étage Les plans ont évolué, nouveaux agencements
Nous vous accompagnons pour finaliser les travaux extérieurs - Commerce à MACON
Nous vous accompagnons pour finaliser les travaux extérieurs
Ce site est protégé par reCAPTCHA la Politique de confidentialité et les Conditions d’utilisation de Google s’appliquent.
Obtenir un prêt immobilier au meilleur taux ?

En poursuivant votre navigation sans modifier vos paramètres, vous acceptez l'utilisation de cookies susceptibles de réaliser des statistiques de visite. Cliquez ici pour plus d'informations