Bénéficiez des services de nos partenaires locaux soigneusement sélectionnés
pour vous accompagner dans votre parcours d'achat immobilier

Voir tous les partenaires locaux

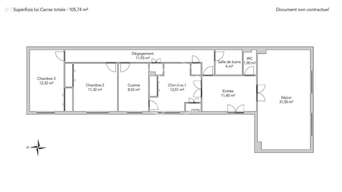
Paris 7e - rue de l'université - appartement à vendre - 5 pièces - 105,74m² carrez - 106,19m² au sol - 3 chambres - traversant.

— Paris-7e 75007 —
1 390 000 €
106 m²
5 pièces
ascenseur

Nos partenaires locaux
Cet appartement traversant de 105,74m² loi Carrez et 106,19m² au sol se situe au troisième étage avec ascenseur d’une belle copropriété de 1956.

Exposé plein sud, ce bien à rafraîchir comprend une entrée, un double séjour lumineux, trois chambres sur cour exposées à l’ouest, une cuisine indépendante, une salle de bains et des toilettes séparées.

Son plan modulable permet la création d’une deuxième salle de douche et de toilettes supplémentaires.

Idéalement situé dans un quartier recherché, à deux pas de l’école La Rochefoucauld, de la rue Saint-Dominique et des quais de Seine, ce bien offre un cadre de vie idéal pour une famille. La profession libérale est autorisée.

Une cave complète ce bien.
Voir plus

Référence: 3332GREBOL
Barème des honoraires
DPE
A
B
C
D
E
F
G
GES
A
B
C
D
E
F
G

Prêt immobilier

Vous souhaitez connaître votre capacité d’emprunt et trouver le meilleur crédit immobilier ?
Réaliser une simulation gratuite

Appartement à PARIS-7E
Appartement à PARIS-7E
Appartement à PARIS-7E
Appartement à PARIS-7E
Appartement à PARIS-7E
Appartement à PARIS-7E
Appartement à PARIS-7E
Appartement à PARIS-7E
Appartement à PARIS-7E
Appartement à PARIS-7E
Appartement à PARIS-7E
Appartement à PARIS-7E
Appartement à PARIS-7E
Appartement à PARIS-7E
Appartement à PARIS-7E
Appartement à PARIS-7E
Appartement à PARIS-7E
Appartement à PARIS-7E
Appartement à PARIS-7E
Appartement à PARIS-7E
Appartement à PARIS-7E
Ce site est protégé par reCAPTCHA la Politique de confidentialité et les Conditions d’utilisation de Google s’appliquent.
Obtenir un prêt immobilier au meilleur taux ?

En poursuivant votre navigation sans modifier vos paramètres, vous acceptez l'utilisation de cookies susceptibles de réaliser des statistiques de visite. Cliquez ici pour plus d'informations