Mouy centre!

— Mouy 60250 —
165 000 €
71 m²
2 pièces
parkingbalcon/terrasse

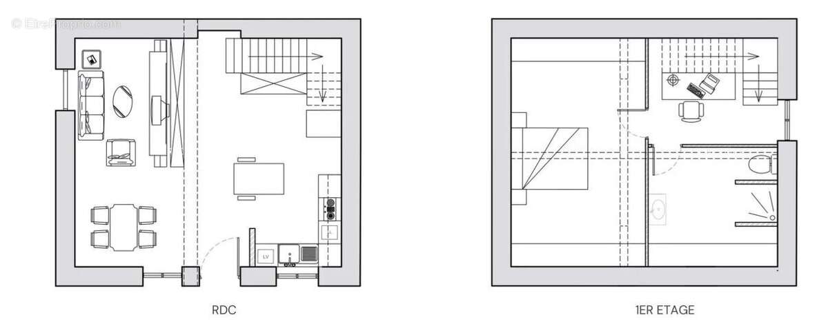
Maison neuve d'environ 70m². Tout les travaux seront finit pour la vente. Comprenant entrée sur séjour-cuisine, chambre, salle d'eau et toilettes. Terrasse d'environ 37m² et deux places de parking.
Faites vite!!!
« Les informations sur les risques auxquels ce bien est exposé sont disponibles sur le site Géorisques, georisques.gouv.fr ».
Bien situé en copropriété.
Nombre de lots: 25.
Charges annuelles: 100€.
Aucune procédure en cours.
Les honoraires sont à la charge du vendeur.
Conformément à l'article L.561-5 et suivants du Code Monétaire et Financier, il vous sera demandé de nous présenter une pièce d'identité avant chaque visite.
Voir plus

Référence: 86402126
Barème des honoraires
DPE
A
B
C
D
E
F
G
GES
A
B
C
D
E
F
G

Prêt immobilier

Vous souhaitez connaître votre capacité d’emprunt et trouver le meilleur crédit immobilier ?
Réaliser une simulation gratuite

Maison à MOUY
Maison à MOUY
Ce site est protégé par reCAPTCHA la Politique de confidentialité et les Conditions d’utilisation de Google s’appliquent.
Obtenir un prêt immobilier au meilleur taux ?

En poursuivant votre navigation sans modifier vos paramètres, vous acceptez l'utilisation de cookies susceptibles de réaliser des statistiques de visite. Cliquez ici pour plus d'informations