Pas de commerce à Migre pour le moment. Découvrez dès maintenant les commerces dans le département Charente-Maritime.
Bénéficiez des services de nos partenaires locaux soigneusement sélectionnés
pour vous accompagner dans votre parcours d'achat immobilier

A vendre brest le guelmeur maison 120 m² habitables 4 chambres sous sol garage

— Brest 29200 —
250 000 €
120 m² / 371 m²
5 pièces
parkingbalcon/terrassejardin

Nos partenaires locaux
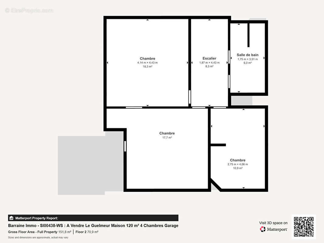
BREST - LE GUELMEUR - Réf : SI00438-WS Découvrez cette charmante maison à vendre située à Brest, dans le secteur prisé du Guelmeur. Avec une surface habitable de 120 m² et un terrain de 371 m², cette maison construite en 1969, où quelques travaux sont à prévoir, offre un grand potentiel. Elle dispose d'une entrée, une cuisine aménagée ouverte sur un vaste salon-séjour lumineux, agrémenté d'une cheminée. WC séparés. A l'étage, 3 chambres, une salle d'eau avec WC. Au sous-sol, une vaste pièce de 25 m² offrant de multiples aménagements possibles (salle de jeux, bureau, etc.), accompagnée d'une salle de bains et d'un accès direct au garage. Le bien est à rafraîchir, ce qui vous permettra de l'aménager à votre goût. Profitez d'un accès facile aux transports en commun, avec le bus à moins de deux minutes. Les écoles, comme l'École primaire publique Le Forestou et le Lycée polyvalent privé Estran Fénelon, sont également à proximité. Pour vos courses, un supermarché est accessible à moins d'un kilomètre. Pour le stationnement profitez d'un garage et d'une place de parking. La maison est équipée de a fibre optique. Ne manquez pas cette opportunité, contactez l'Agence Barraine IMMO Brest - Siam pour plus d'informations. (5.04 % honoraires TTC à la charge de l'acquéreur.)
Voir plus

Référence: SI00438-WS
Honoraires d'agence de 5.04% à la charge de l'acquéreur
Barème des honoraires
DPE
A
B
C
D
E
F
G
GES
A
B
C
D
E
F
G

Prêt immobilier

Vous souhaitez connaître votre capacité d’emprunt et trouver le meilleur crédit immobilier ?
Réaliser une simulation gratuite

Maison à BREST
Maison à BREST
Maison à BREST
Maison à BREST
Maison à BREST
Maison à BREST
Maison à BREST
Maison à BREST
Maison à BREST
Maison à BREST
Maison à BREST
Maison à BREST
Maison à BREST
Maison à BREST
Maison à BREST
Maison à BREST
Maison à BREST
Maison à BREST
Maison à BREST
Ce site est protégé par reCAPTCHA la Politique de confidentialité et les Conditions d’utilisation de Google s’appliquent.
Obtenir un prêt immobilier au meilleur taux ?

En poursuivant votre navigation sans modifier vos paramètres, vous acceptez l'utilisation de cookies susceptibles de réaliser des statistiques de visite. Cliquez ici pour plus d'informations