Bénéficiez des services de nos partenaires locaux soigneusement sélectionnés
pour vous accompagner dans votre parcours d'achat immobilier

Exclusivité / quartier saint-joseph t3 55 m²

— Marseille-14e 13014 —
117 000 €
55 m²
3 pièces

Nos partenaires locaux
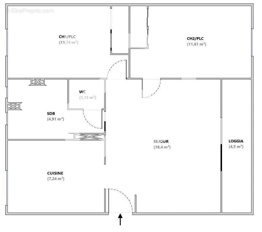
En exclusivité chez Stéphane Plaza Gardanne, Bel appartement T3 de 55 m² au 2em étage sur 3 dans une copropriété calme. Séjour lumineux de 18 m² avec loggia fermée de 4 m² et vue dégagée, cuisine indépendante avec chaudière, 2 chambres avec placards, salle de bain spacieuse et WC séparé. Le logement dispose de double vitrage et d'un climatiseur bi-split dans la pièce principale. Cave de 10 m² et place de parking réservée dans la cour de la copropriété. Charges trimestrielles : environ 150 euros / Taxe foncière : 955 euros Quartier calme proche du parc du Grand Séminaire, commerces et écoles. Mandat : LD 114 Bien proposé par LEROCH Didier EI, agent commercial (RSAC 481634152) Tel: [Coordonnées masquées] Copropriété de 24 lots (Pas de procédure en cours). Charges annuelles : 960 euros. Didier LEROCH (EI) Agent Commercial - Numéro RSAC : - .
Voir plus

Référence: LD114
Bien en copropriété. Nombre de lots : 24. Charges de copropriété : 960 €.
Honoraires à la charge du vendeur.
Barème des honoraires
DPE
A
B
C
D
E
F
G
GES
A
B
C
D
E
F
G

Prêt immobilier

Vous souhaitez connaître votre capacité d’emprunt et trouver le meilleur crédit immobilier ?
Réaliser une simulation gratuite

Appartement à MARSEILLE-14E
Appartement à MARSEILLE-14E
Appartement à MARSEILLE-14E
Appartement à MARSEILLE-14E
Appartement à MARSEILLE-14E
Appartement à MARSEILLE-14E
Appartement à MARSEILLE-14E
Appartement à MARSEILLE-14E
Ce site est protégé par reCAPTCHA la Politique de confidentialité et les Conditions d’utilisation de Google s’appliquent.
Obtenir un prêt immobilier au meilleur taux ?

En poursuivant votre navigation sans modifier vos paramètres, vous acceptez l'utilisation de cookies susceptibles de réaliser des statistiques de visite. Cliquez ici pour plus d'informations