Bénéficiez des services de nos partenaires locaux soigneusement sélectionnés
pour vous accompagner dans votre parcours d'achat immobilier

Commerce 240m² à la tour-du-pin

— La Tour-Du-Pin 38110 —
146 000 €
240 m²
3 pièces

Nos partenaires locaux
Iad France - Stéphane Gandit vous propose : Exceptionnel Loft / Plateau - Potentiel Incroyable!
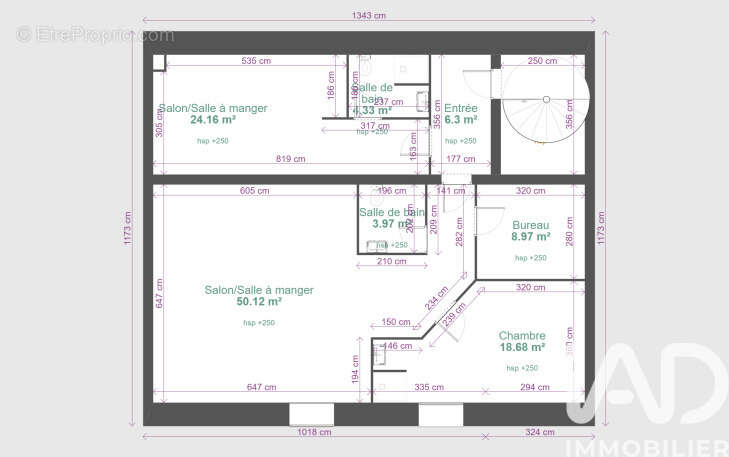
Dans la charmante ville de La Tour-du-Pin, ce duplex rare est une opportunité unique pour les amateurs de rénovation et de personnalisation. Construit en 1940, cet appartement spacieux offre un potentiel incroyable pour être transformé en un espace de vie moderne et élégant qui vous ressemble.

Au cOEur de la résidence, ce plateau d'environ 240 m² répartis sur deux niveaux vous offre une base solide pour réaliser votre projet de rénovation. Avec ses trois espaces de vie distincts totalisant un plateau de 82 m², un second plateau de 32 m² et des combles à aménagés 127 m² ( 81 m² carrez ), vous bénéficiez d'une grande liberté pour concevoir des espaces de vie uniques et confortables.

Le deuxième niveau de l'appartement vous offre des expositions au sud et à l'est, apportant une luminosité naturelle tout au long de la journée grâce à ses VELUX. Imaginez-vous profiter d'une belle luminosité naturelle dans un espace rénové à votre goût.

Bien que nécessitant des travaux, cet ensemble présente un excellent potentiel avec ses jolies expositions et sa distribution. Avec un peu d'imagination et de travail, cet espace pourrait devenir une véritable perle rare au cOEur de La Tour-du-Pin.

Situé au deuxième étage d'un immeuble de deux niveaux, cet appartement bénéficie d'une position privilégiée, offrant calme et tranquillité tout en étant proche des commodités de la ville.

Si vous recherchez un bien à fort potentiel offrant la possibilité de concevoir votre espace de vie idéal, cet ensemble immobilier est fait pour vous. N'attendez plus pour concrétiser votre projet de rénovation et transformer ces plateaux en de véritables bijoux personnalisés. Une visite s'impose pour saisir toute l'étendue des possibilités offertes par ce bien unique à La Tour-du-Pin.

La presente annonce immobiliere vise 2 lots situés dans une copropriété de 4 lots au total et ne faisant l'objet d'aucune procédure en cours citée à l'article L. 721-1 du code de la construction et de l'habitation. Montant moyen mensuel de charges déclaré par le vendeur : 31.67¤ par mois (soit 380 ¤ annuel). Honoraires d'agence à la charge du vendeur.
Bien non soumis au DPE. Les informations sur les risques auxquels ce bien est exposé, y compris l'obligation légale de débroussaillement, sont disponibles sur le site Géorisques : http://www.georisques.gouv.fr.
La présente annonce immobilière a été rédigée sous la responsabilité éditoriale de M Stéphane Gandit mandataire indépendant en immobilier (sans détention de fonds), agent commercial de la SAS I@D France immatriculé au RSAC de Vienne sous le numéro 440884450, titulaire de la carte de démarchage immobilier pour le compte de la société I@D France SAS.
Informations LOI ALUR :
Soumis au régime de copropriété.
Nombre de lots : 4.
Quote part annuelle(moyenne) : 380 euros.
Honoraires charge vendeur. (gedeon_6727_32100942)
Voir plus

Référence: 1877081
Bien en copropriété. Nombre de lots : 4. Charges de copropriété : 380 €.
Honoraires à la charge du vendeur.

Prêt immobilier

Vous souhaitez connaître votre capacité d’emprunt et trouver le meilleur crédit immobilier ?
Réaliser une simulation gratuite

Photo 1 - Commerce à LA TOUR-DU-PIN
Photo 1
Photo 2 - Commerce à LA TOUR-DU-PIN
Photo 2
Photo 3 - Commerce à LA TOUR-DU-PIN
Photo 3
Photo 4 - Commerce à LA TOUR-DU-PIN
Photo 4
Photo 5 - Commerce à LA TOUR-DU-PIN
Photo 5
Photo 6 - Commerce à LA TOUR-DU-PIN
Photo 6
Photo 7 - Commerce à LA TOUR-DU-PIN
Photo 7
Photo 8 - Commerce à LA TOUR-DU-PIN
Photo 8
Photo 9 - Commerce à LA TOUR-DU-PIN
Photo 9
Ce site est protégé par reCAPTCHA la Politique de confidentialité et les Conditions d’utilisation de Google s’appliquent.
Obtenir un prêt immobilier au meilleur taux ?

En poursuivant votre navigation sans modifier vos paramètres, vous acceptez l'utilisation de cookies susceptibles de réaliser des statistiques de visite. Cliquez ici pour plus d'informations