Bénéficiez des services de nos partenaires locaux soigneusement sélectionnés
pour vous accompagner dans votre parcours d'achat immobilier

Commerce 217m² à le bignon

— Le Bignon 44140 —
349 912 €
218 m²
parking

Nos partenaires locaux
Village d'entreprises LE BIGNON, au Sud de Nantes :
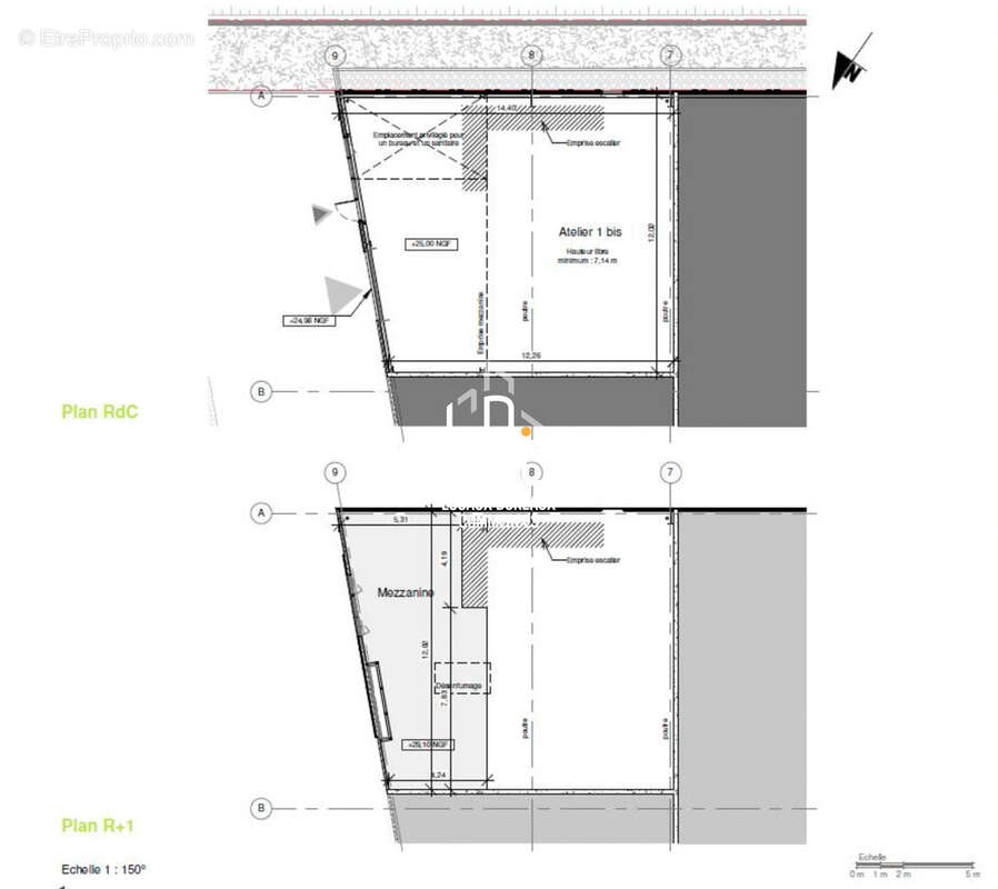
Local d'activité neuf d'environ 217,90 m² comprenant une surface de stockage de 160,20 m² et une mezzanine de 57,70 m² en plancher collaborant, pouvant supporter une charge de 250kg/m² (escalier et garde-corps non compris) et disposant de 3 stationnements privatifs.
Livré brut de béton, le local est équipé d'huisseries et d'une porte sectionnelle de 3,43 X 3 mètres. Le raccordement électrique, incluant un compteur, des prises électriques, et un éclairage LED, est en place. Les fluides en attente sont prêts à être connectés.
La hauteur libre sous charpente est de 7,11 m en bas de pente et de 7,54 m au point haut, offrant ainsi un environnement spacieux et modulables selon vos besoins.
Le site sera équipé de clôtures rigides et d'un portail coulissant motorisé. Les parkings seront précâblés pour l'installation de bornes électriques.
Conforme aux normes RT2020, garantissant une performance énergétique optimale, cet espace est idéal pour les entreprises qui recherchent un environnement spacieux, modulable et performant. Il est situé dans un environnement dynamique et accessible, à proximité de Nantes et des grands axes routiers.
Prix de vente HT : 333 250 € + Honoraires charge acquéreur 5 % HT du prix de vente + TVA 20%.
Pour plus d'informations contactez-nous au [Coordonnées masquées]

Honoraires inclus de 5% HT à la charge de l'acquéreur. Prix hors honoraires 333 250 € HT. Non soumis au DPE. Les informations sur les risques auxquels ce bien est exposé sont disponibles sur le site Géorisques : georisques.gouv.fr.
.
LOCAUX-BUREAUX-COMMERCES [Coordonnées masquées]
Voir plus

Référence: LMV0002A-LBC44
Honoraires d'agence de 5% à la charge de l'acquéreur
Barème des honoraires

Prêt immobilier

Vous souhaitez connaître votre capacité d’emprunt et trouver le meilleur crédit immobilier ?
Réaliser une simulation gratuite

Commerce à LE BIGNON
Commerce à LE BIGNON
Commerce à LE BIGNON
Commerce à LE BIGNON
Commerce à LE BIGNON
Commerce à LE BIGNON
Commerce à LE BIGNON
Ce site est protégé par reCAPTCHA la Politique de confidentialité et les Conditions d’utilisation de Google s’appliquent.
Obtenir un prêt immobilier au meilleur taux ?

En poursuivant votre navigation sans modifier vos paramètres, vous acceptez l'utilisation de cookies susceptibles de réaliser des statistiques de visite. Cliquez ici pour plus d'informations