Appartement à vendre 2 pièces avec terrasse au 1er et dernier étage, vue lac et montagnes sur savines le lac (05) , dans une rés

— Savines-Le-Lac 05160 —
205 000 €
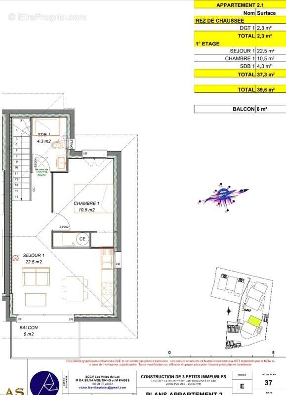
40 m²
2 pièces
balcon/terrasse

DERNIER LOT DISPONIBLE

Nouveauté et Exclusivité CAPIFRANCE "Les Villas Du Lac "

Appartement T2 /T3de 40 M2 avec combles récupérables ! au 1er et dernier étage en angle,rare sur le marché avec terrasse vue Lac et Montagnes, idéal pour profiter des beaux jours
Exposition sud-est pour un ensoleillement optimal
Situé dans un environnement calme et ensoleillé, cet appartement allie confort et modernité, tout en restant proche des commodités, des plages et des stations de ski.

D'autres appartements lumineux et confortables du T2 au T4 en duplex ou de plain pied, livrable été 2026 sont disponible

Dans un cadre exceptionnel entre lac et montagnes, découvrez cette nouvelle résidence intimiste en construction, composée de seulement 14 appartements répartis dans 3 petits bâtiments au style villa.
Chaque appartement bénéficie d'un jardin privatif et/ou d'une terrasse, avec une vue dégagée sur le lac et les montagnes.
Possibilité de garage en sus

Des prestations de qualité et modernes ...

Charges réduites grâce à une conception économe
Chauffage individuel par pompe à chaleur et rafraîchisseur
Certains appartements sont équipés d'un conduit pour cheminée ou poêle

Un environnement calme, ensoleillé et préservé, idéal pour vivre à l'année ou en résidence secondaire.

Contactez-moi dès aujourd'hui pour découvrir les plans et réserver votre appartement.
Frais de notaire réduit...

Documentation sur demande et visite de l'emplacement possible !

Prix pondéré ,qui prend en compte la surface intérieure et la surface extérieure ( jardin ,terrasse ,balcon... ) : 4700 Euros / m²
Nombre de lots de la copropriété : 14, Montant moyen annuel de la quote-part de charges (budget prévisionnel) : 0€ soit 0€ par mois. Les honoraires sont à la charge du vendeur.
Les informations sur les risques auxquels ce bien est exposé sont disponibles sur le site Géorisques : www. georisques. gouv. fr.

Réseau Immobilier CAPIFRANCE - Votre agent commercial (RSAC N°431 893 080 - Greffe de GAP) Victor DA SILVA MOUTINHO Entrepreneur Individuel [Coordonnées masquées] - Réf.927149
Voir plus

Référence: 340937820130
Bien en copropriété. Nombre de lots : 14.
Honoraires à la charge du vendeur.

Prêt immobilier

Vous souhaitez connaître votre capacité d’emprunt et trouver le meilleur crédit immobilier ?
Réaliser une simulation gratuite

Appartement à SAVINES-LE-LAC
Appartement à SAVINES-LE-LAC
Appartement à SAVINES-LE-LAC
Appartement à SAVINES-LE-LAC
Appartement à SAVINES-LE-LAC
Appartement à SAVINES-LE-LAC
Appartement à SAVINES-LE-LAC
Appartement à SAVINES-LE-LAC
Ce site est protégé par reCAPTCHA la Politique de confidentialité et les Conditions d’utilisation de Google s’appliquent.
Obtenir un prêt immobilier au meilleur taux ?

En poursuivant votre navigation sans modifier vos paramètres, vous acceptez l'utilisation de cookies susceptibles de réaliser des statistiques de visite. Cliquez ici pour plus d'informations