Bénéficiez des services de nos partenaires locaux soigneusement sélectionnés
pour vous accompagner dans votre parcours d'achat immobilier

Maison 140m² à sausset-les-pins

— Sausset-Les-Pins 13960 —
730 000 €
140 m² / 600 m²
5 pièces
parkingbalcon/terrassejardinpiscine

Nos partenaires locaux
"13960 SAUSSET-LES-PINS - QUARTIER RÉSIDENTIEL - MAISON ENTIEREMENT RENOVEE - 5 PIÈCES - 3/4 CHAMBRES - SURFACE 140 M2 - PISCINE - TERRASSE - EXCELLENTE OPPORTUNITÉ À SAISIR

EffiCity, l'agence qui estime votre bien en ligne, vous propose cette charmante maison située dans un quartier résidentiel prisé de Sausset-Les-Pins entièrement rénovée avec goût, baignée de lumière grâce à sa triple exposition dans la pièce de vie et la cuisine ouverte.
Idéalement située à 10 minutes à pied du centre ville, de la mer, et des différentes commodités, et écoles, vous serez également à moins de 30 minutes en voiture de l'aéroport de Marseille Provence, ou d'Aix TGV.
Grande pièce de vie lumineuse de 44 m² avec salon/salle à manger et cuisine ouverte entièrement équipée. Accès direct à une terrasse, idéale pour les repas d'été.
L'espace nuit est composé d'un vestibule central (ou bureau selon vos envies ) desservant 2 chambres de 13 et 14 m² : une suite parentale avec dressing, salle de douche et WC privatif, une seconde chambre également avec sa salle d'eau. WC indépendant pour les invités.
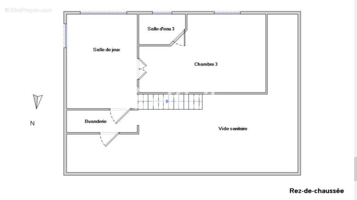
Le rez-de-chaussée est composé d'une grande chambre de 21 m² avec salle de bain privative, une salle de jeux de 15 m² transformable en chambre si besoin avec climatisation réversible.
Une buanderie, et un vaste espace de stockage de plus de 40 m² idéal pour atelier, rangements divers, cave, viennent compléter ce bien...
La maison est équipée entièrement de climatisation gainable réversible.
A l'extérieur , profitez d'un jardin facile d'entretien avec piscine, terrasse, et stationnement pour 3 véhicules.
Ce bien entièrement refait à neuf offre un cadre de vie idéal pour une famille dans un environnement calme , avec des finitions de qualité et une luminosité exceptionnelle.
N'hésitez pas à me contacter pour plus d'informations du lundi au dimanche
Les informations sur les risques auxquels ce bien est exposé sont disponibles sur le site Georisque : georisques. gouv. fr
Maud Rotar - EI - est Agent Commercial mandataire en immobilier, immatriculé au Registre Spécial des Agents Commerciaux du Tribunal de Commerce de Aix-en-Provence sous le n°921858775.
Siège social du mandant : effiCity, 48 avenue de Villiers - 75017 PARIS - Société par Actions Simplifiée, société au capital de 132 373,05 euros, immatriculée au RCS Paris 497 617 746 et titulaire de la Carte professionnelle CPI 75[Coordonnées masquées]02 025 - CCI Paris IDF - Caisse de Garantie : GALIAN Assurances 89 rue de la Boétie 75008 Paris
Voir plus

Référence: 195717
Honoraires à la charge du vendeur.
Barème des honoraires
DPE
A
B
C
D
E
F
G
GES
A
B
C
D
E
F
G

Prêt immobilier

Vous souhaitez connaître votre capacité d’emprunt et trouver le meilleur crédit immobilier ?
Réaliser une simulation gratuite

Maison à SAUSSET-LES-PINS
Maison à SAUSSET-LES-PINS
Maison à SAUSSET-LES-PINS
Maison à SAUSSET-LES-PINS
Maison à SAUSSET-LES-PINS
Maison à SAUSSET-LES-PINS
Maison à SAUSSET-LES-PINS
Maison à SAUSSET-LES-PINS
Maison à SAUSSET-LES-PINS
Maison à SAUSSET-LES-PINS
Maison à SAUSSET-LES-PINS
Maison à SAUSSET-LES-PINS
Maison à SAUSSET-LES-PINS
Maison à SAUSSET-LES-PINS
Maison à SAUSSET-LES-PINS
Maison à SAUSSET-LES-PINS
Maison à SAUSSET-LES-PINS
Maison à SAUSSET-LES-PINS
Maison à SAUSSET-LES-PINS
Maison à SAUSSET-LES-PINS
Ce site est protégé par reCAPTCHA la Politique de confidentialité et les Conditions d’utilisation de Google s’appliquent.
Obtenir un prêt immobilier au meilleur taux ?

En poursuivant votre navigation sans modifier vos paramètres, vous acceptez l'utilisation de cookies susceptibles de réaliser des statistiques de visite. Cliquez ici pour plus d'informations