Maison 250m² à les lilas

— Les Lilas 93260 —
1 300 000 €
250 m² / 800 m²
8 pièces
balcon/terrassejardin

EXCLUSIVITÉ - 93230 - ROMAINVILLE - TRIANGLE D'OR - SECTEUR PRISÉ - MAISON D'EXCEPTION - 8/9 PIÈCES - 240M2 - PARCELLE 800 M2 - GRAND JARDIN

Idéalement située en plein cœur du TRIANGLE D'OR de Romainville, à 5 minutes du métro Romainville-Carnot (Ligne 11) et de la place du marché, cette maison de Maître construite au début du XXème siècle se distingue par son architecture de style Louisiane et son environnement calme, au cœur d'une parcelle d'environ 800 m² avec grand jardin arboré.

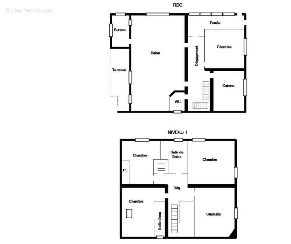
Les 8/9 pièces de cette belle demeure sont réparties sur quatre niveaux pour une surface de 240 m² (loi carrez), environ 290 m2 au sol.

Au rez-de-chaussée, une double entrée distribue un séjour (32 m2) ouvrant sur une terrasse, un atelier, une cuisine équipée et chaleureuse, une chambre et un WC indépendant.

Au premier étage, un palier dessert une salle de bain avec WC et quatre chambres dont une avec salle d'eau.
Au deuxième étage, des combles aménagés avec point d'eau offrent un espace supplémentaire très lumineux et polyvalent.

Au rez-de-jardin, un ensemble de pièces de service (buanderie, chaufferie, réserve) et un espace pouvant servir de salon d'été donne directement sur le jardin.
Ce niveau avec accès indépendant pourrait être transformé en appartement.

Un grand garage indépendant d'environ (42 m²) complète la propriété et offre un potentiel évolutif intéressant.

Une vraie maison de famille en plein cœur de la ville avec le charme et la tranquillité de la campagne. Son grand jardin clos de murs d'environ 700 m², planté de bambous et d'un majestueux pin maritime, offre un cadre verdoyant et apaisant.

Toutes les commodités sont à proximité : écoles, commerces, marché, animations, transports (Métro L11 - Romainville Carnot), accès rapide à l'autoroute A3

Pour découvrir cette belle demeure familiale à seulement quelques minutes de Paris, contacter Leïla Richard : [Coordonnées masquées]
Les informations sur les risques auxquels ce bien est exposé sont disponibles sur le site Georisque : georisques. gouv. fr
Leïla Richard - EI - est Agent Commercial mandataire en immobilier, immatriculé au Registre Spécial des Agents Commerciaux du Tribunal de Commerce de Bobigny sous le n°885005942.
Siège social du mandant : effiCity, 48 avenue de Villiers - 75017 PARIS - Société par Actions Simplifiée, société au capital de 132 373,05 euros, immatriculée au RCS Paris 497 617 746 et titulaire de la Carte professionnelle CPI 75[Coordonnées masquées]02 025 - CCI Paris IDF - Caisse de Garantie : GALIAN Assurances 89 rue de la Boétie 75008 Paris
Voir plus

Référence: 197290
Honoraires à la charge du vendeur.
Barème des honoraires
DPE
A
B
C
D
E
F
G
GES
A
B
C
D
E
F
G

Prêt immobilier

Vous souhaitez connaître votre capacité d’emprunt et trouver le meilleur crédit immobilier ?
Réaliser une simulation gratuite

Maison à LES LILAS
Maison à LES LILAS
Maison à LES LILAS
Maison à LES LILAS
Maison à LES LILAS
Maison à LES LILAS
Maison à LES LILAS
Maison à LES LILAS
Maison à LES LILAS
Maison à LES LILAS
Maison à LES LILAS
Maison à LES LILAS
Maison à LES LILAS
Maison à LES LILAS
Maison à LES LILAS
Maison à LES LILAS
Ce site est protégé par reCAPTCHA la Politique de confidentialité et les Conditions d’utilisation de Google s’appliquent.
Obtenir un prêt immobilier au meilleur taux ?

En poursuivant votre navigation sans modifier vos paramètres, vous acceptez l'utilisation de cookies susceptibles de réaliser des statistiques de visite. Cliquez ici pour plus d'informations