Bénéficiez des services de nos partenaires locaux soigneusement sélectionnés
pour vous accompagner dans votre parcours d'achat immobilier

Ensemble immobilier, mairie de montreuil

— Montreuil 93100 —
1 700 000 €
441 m²
parking

Nos partenaires locaux
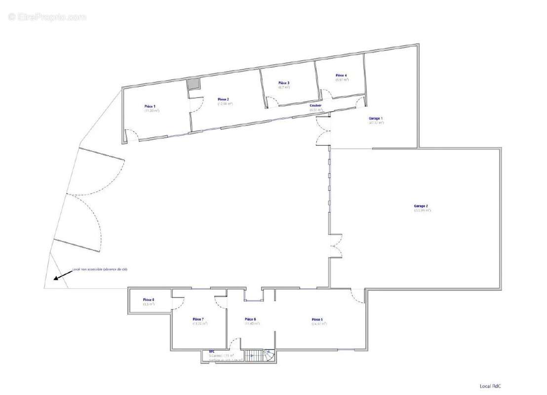
Ensemble immobilier, proche Mairie de Montreuil et accès autoroute, composée d’un atelier de 315 m², avec espace bureaux, bénéficiant d’un accès sur deux rues, ainsi qu’une cour pouvant accueillir 10 véhicules.

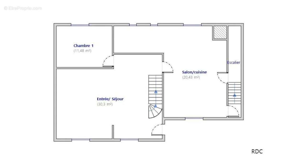
Une maison d’habitation, pouvant etre redistribuée en 3 appartements, box en rdj et jardin.

Metro L9 à 12 min à pieds.

Travaux à prévoir, surélévation possible.

Référence: 86405125
Barème des honoraires
DPE
A
B
C
D
E
F
G
GES
A
B
C
D
E
F
G

Prêt immobilier

Vous souhaitez connaître votre capacité d’emprunt et trouver le meilleur crédit immobilier ?
Réaliser une simulation gratuite

Appartement à MONTREUIL
Appartement à MONTREUIL
Appartement à MONTREUIL
Appartement à MONTREUIL
Appartement à MONTREUIL
Appartement à MONTREUIL
Appartement à MONTREUIL
Appartement à MONTREUIL
Appartement à MONTREUIL
Appartement à MONTREUIL
Appartement à MONTREUIL
Appartement à MONTREUIL
Appartement à MONTREUIL
Appartement à MONTREUIL
Appartement à MONTREUIL
Appartement à MONTREUIL
Appartement à MONTREUIL
Ce site est protégé par reCAPTCHA la Politique de confidentialité et les Conditions d’utilisation de Google s’appliquent.
Obtenir un prêt immobilier au meilleur taux ?

En poursuivant votre navigation sans modifier vos paramètres, vous acceptez l'utilisation de cookies susceptibles de réaliser des statistiques de visite. Cliquez ici pour plus d'informations