Bénéficiez des services de nos partenaires locaux soigneusement sélectionnés
pour vous accompagner dans votre parcours d'achat immobilier

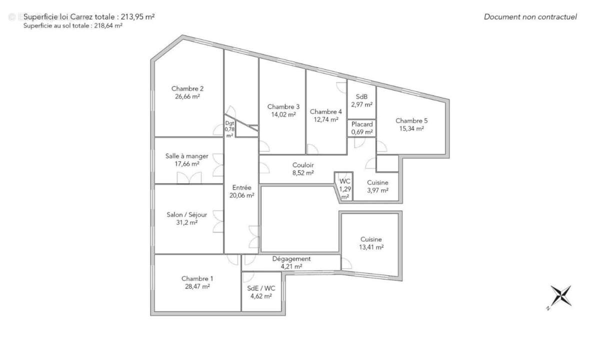
Appartement 214m² à paris-17e

— Paris-17e 75017 —
1 975 000 €
214 m²
7 pièces

Nos partenaires locaux
Moriss Immobilier a le plaisir de vous proposer ce superbe appartement familial de 214 m², idéalement situé dans le 17ᵉ arrondissement, à deux pas de la place Pereire, des commerces, des transports et d’écoles privées réputées.

Situé au 2ᵉ étage d’un bel immeuble haussmannien sécurisé avec gardien, il offre un plan fonctionnel comprenant : une galerie d’entrée, une vaste double réception avec balcon filant, une cuisine indépendante, une suite parentale avec salle de douche, quatre autres chambres dont une d’angle, une salle de bains, des toilettes séparés et un espace kitchenette.

Une grande cave complète ce bien.

Vous serez séduit par ses volumes, sa luminosité et le charme de l’ancien (parquet, moulures, cheminées).
Voir plus

Référence: 86404824
DPE
A
B
C
D
E
F
G
GES
A
B
C
D
E
F
G

Prêt immobilier

Vous souhaitez connaître votre capacité d’emprunt et trouver le meilleur crédit immobilier ?
Réaliser une simulation gratuite

Appartement à PARIS-17E
Appartement à PARIS-17E
Appartement à PARIS-17E
Appartement à PARIS-17E
Appartement à PARIS-17E
Appartement à PARIS-17E
Appartement à PARIS-17E
Appartement à PARIS-17E
Appartement à PARIS-17E
Appartement à PARIS-17E
Appartement à PARIS-17E
Appartement à PARIS-17E
Appartement à PARIS-17E
Ce site est protégé par reCAPTCHA la Politique de confidentialité et les Conditions d’utilisation de Google s’appliquent.
Obtenir un prêt immobilier au meilleur taux ?

En poursuivant votre navigation sans modifier vos paramètres, vous acceptez l'utilisation de cookies susceptibles de réaliser des statistiques de visite. Cliquez ici pour plus d'informations