Plongonvelin maison contemporaine plain pied à vendre à 1,3 kms plage du trez-hir - 2 chambres, plain-pied

— Plougonvelin 29217 —
298 000 €
73 m² / 287 m²
4 pièces
parkingbalcon/terrassejardin

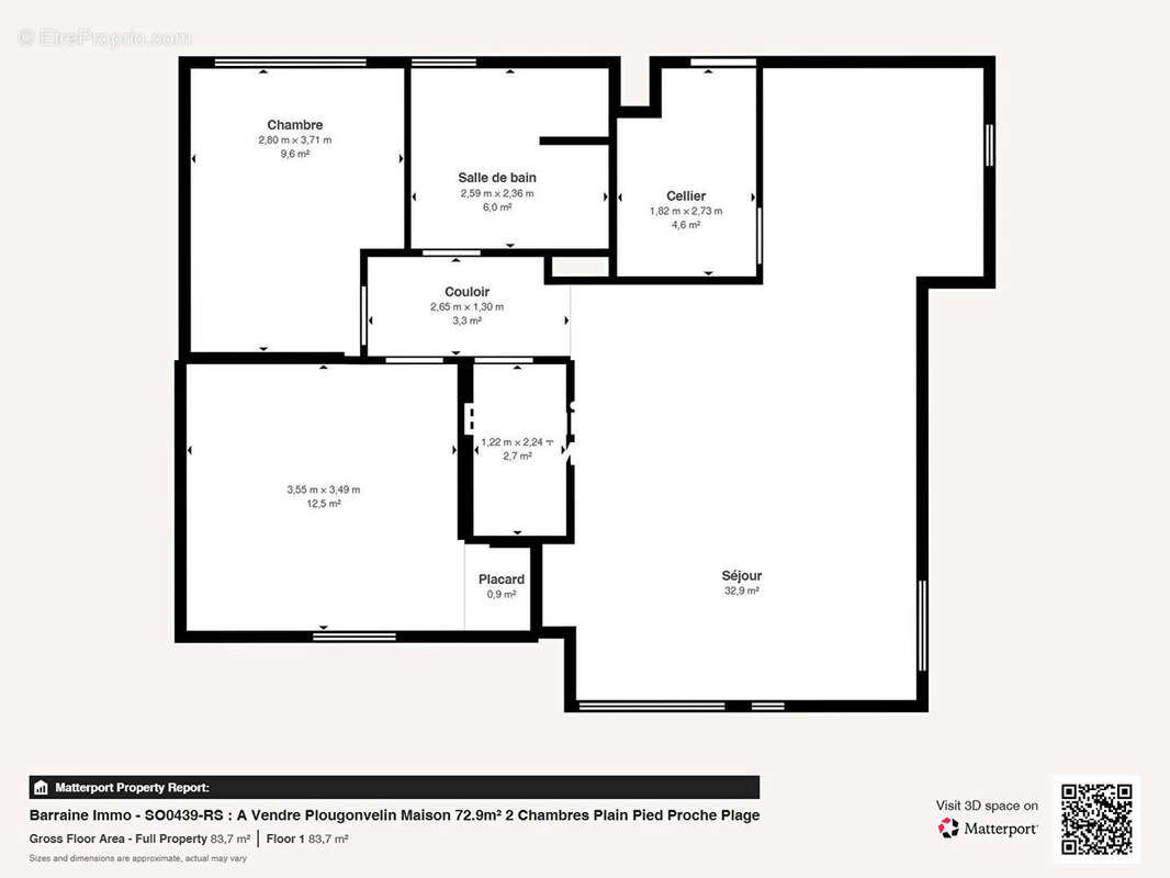
PLONGONVELIN - TREZ-HIR Ref SI00439-RS - MAISON NON MITOYENNE DE PLAIN PIED ACHEVEE le 15 Avril 2011 Disponible fin avril 2026 Découvrez cette charmante maison contemporaine de plain-pied, construite en 2011, située dans un secteur très résidentiel et calme de Plougonvelin, à seulement 1 km des commerces et à proximité de la plage. Avec une surface habitable de 72,90 m², et 91 m² de surface utile, cette propriété dispose de 4 pièces, dont 2 chambres, et offre une pièce de vie exposée sud-est et Sud-ouest de 32.67 m² avec cuisine est aménagée et équipée. Vous bénéficierez d'un confort optimal grâce au chauffage au sol électrique et à un ballon d'eau chaude électrique. Le terrain de 287 m² est entièrement clôturé et sans vis-à-vis, parfait pour profiter de moments de détente en extérieur. Vous trouverez également un garage fermé de 18.10 m² et une terrasse pour vos repas en plein air. Possibilité de créer une suite parentale par le garage. L'accès à la maison est facilité pour les personnes à mobilité réduite. La conformité de raccordement au réseau d'eaux usées et d'eaux pluviales a été validée le 12/12/2022. A proximité, vous aurez accès à plusieurs établissements scolaires tels que l'École primaire Roz Avel et l'École maternelle Roz Avel, ainsi qu'à des infrastructures de loisirs. Ce bien rare sur le marché est idéal pour une famille à la recherche d'un cadre de vie paisible et agréable. N'attendez plus pour visiter cette maison qui pourrait devenir votre nouveau chez-vous !
Voir plus

Référence: SI00439-RS
Honoraires à la charge du vendeur.
Barème des honoraires
DPE
A
B
C
D
E
F
G
GES
A
B
C
D
E
F
G

Prêt immobilier

Vous souhaitez connaître votre capacité d’emprunt et trouver le meilleur crédit immobilier ?
Réaliser une simulation gratuite

Maison à PLOUGONVELIN
Maison à PLOUGONVELIN
Maison à PLOUGONVELIN
Maison à PLOUGONVELIN
Maison à PLOUGONVELIN
Maison à PLOUGONVELIN
Maison à PLOUGONVELIN
Maison à PLOUGONVELIN
Maison à PLOUGONVELIN
Maison à PLOUGONVELIN
Maison à PLOUGONVELIN
Maison à PLOUGONVELIN
Maison à PLOUGONVELIN
Maison à PLOUGONVELIN
Maison à PLOUGONVELIN
Maison à PLOUGONVELIN
Maison à PLOUGONVELIN
Maison à PLOUGONVELIN
Maison à PLOUGONVELIN
Maison à PLOUGONVELIN
Ce site est protégé par reCAPTCHA la Politique de confidentialité et les Conditions d’utilisation de Google s’appliquent.
Obtenir un prêt immobilier au meilleur taux ?

En poursuivant votre navigation sans modifier vos paramètres, vous acceptez l'utilisation de cookies susceptibles de réaliser des statistiques de visite. Cliquez ici pour plus d'informations