Maison - valleiry

— Valleiry 74520 —
519 900 €
114 m² / 170 m²
5 pièces
parkingbalcon/terrassejardin

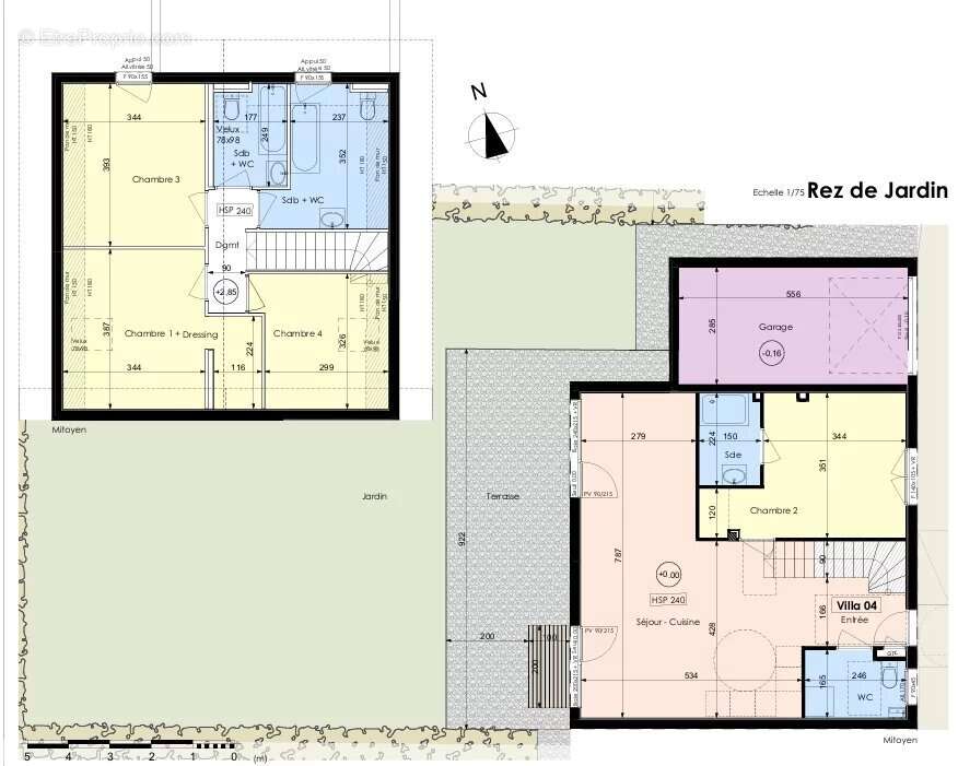
A vendre à Valleiry (74520), dans un charmant ensemble de 9 villas, découvrez cette maison mitoyenne T5, confortable et lumineuse. Elle se compose, au rez-de-chaussée, d’une entrée, d’une belle pièce de vie, d'une chambre avec salle de douche et WC séparé. À l’étage, vous profiterez de 3 chambres dont une avec dressing, d’une salle d'eau avec WC. Un jardin avec terrasse, un garage et une place de stationnement complètent ce descriptif. Idéalement située, à 15 minutes de Saint-Julien-en-Genevois (74160), cette maison est une opportunité à ne pas manquer. CLASSE ENERGIE: NA
"Les informations sur les risques auxquels ce bien est exposé sont disponibles sur le site Géorisques : www.georisques.gouv.fr".
Voir plus

Référence: 782
Barème des honoraires

Prêt immobilier

Vous souhaitez connaître votre capacité d’emprunt et trouver le meilleur crédit immobilier ?
Réaliser une simulation gratuite

Maison à VALLEIRY
Maison à VALLEIRY
Ce site est protégé par reCAPTCHA la Politique de confidentialité et les Conditions d’utilisation de Google s’appliquent.
Obtenir un prêt immobilier au meilleur taux ?

En poursuivant votre navigation sans modifier vos paramètres, vous acceptez l'utilisation de cookies susceptibles de réaliser des statistiques de visite. Cliquez ici pour plus d'informations