Bénéficiez des services de nos partenaires locaux soigneusement sélectionnés
pour vous accompagner dans votre parcours d'achat immobilier

Appartement 115m² à cannes

— Cannes 06400 —
1 191 000 €
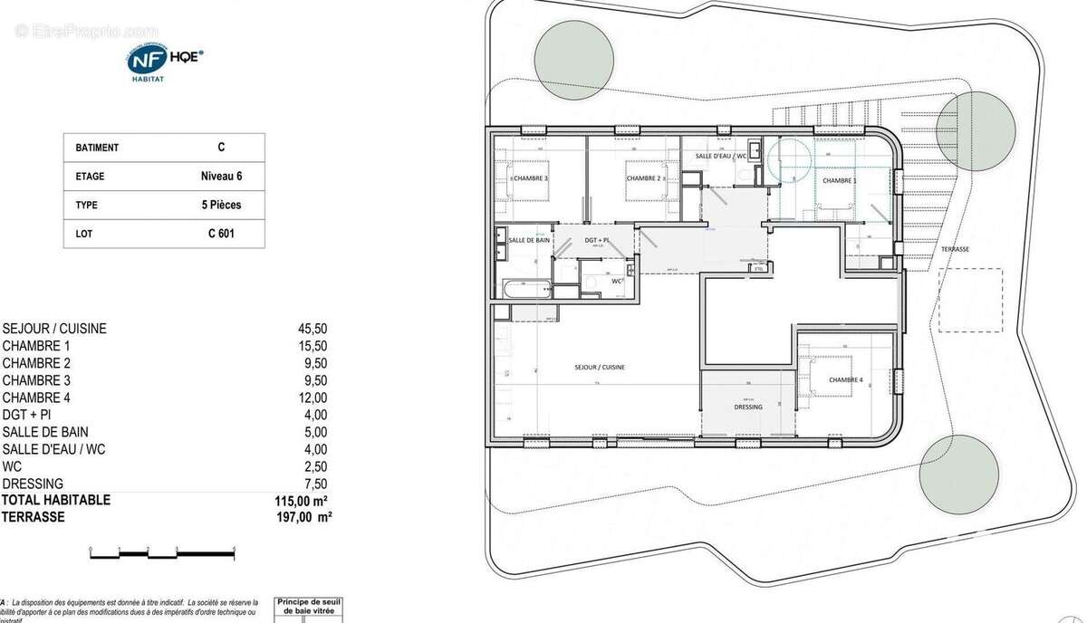
115 m²
5 pièces
balcon/terrasseascenseur

Nos partenaires locaux
Iad France - Isabelle Boemo ([Coordonnées masquées]) vous propose : Appartement d'exception - 5 pièces - 115 m² environ - Terrasse panoramique - À 10 min à pied des plages

Et si vous viviez chaque jour comme en vacances ?
Perché au 6 ? et dernier étage, ce magnifique appartement 5 pièces de 115 m² environ s'ouvre sur une terrasse spectaculaire de près de 200 m² environ, où le ciel et la mer semblent se rejoindre à l'horizon.

Inondé de lumière grâce à ses grandes baies vitrées, il offre une atmosphère élégante et apaisante.
Le séjour de plus de 45 m² environ, prolongé par la terrasse, devient un véritable lieu de vie où intérieur et extérieur se confondent.

Les quatre chambres accueillantes, dont une suite parentale, offrent calme et intimité.
Chaque détail a été pensé pour le confort : climatisation réversible, prestations haut de gamme, finitions raffinées, ascenseur et stationnement sécurisé.

À seulement 10 minutes à pied des plages, dans un environnement paisible, cet appartement incarne l'art de vivre méditerranéen : l'élégance, la lumière et la sérénité au quotidien.

Honoraires d'agence à la charge du vendeur. Bien non soumis au DPE. Les informations sur les risques auxquels ce bien est exposé sont disponibles sur le site Géorisques : www.georisques.gouv.fr. La présente annonce immobilière a été rédigée sous la responsabilité éditoriale de Mlle Isabelle Boemo EI (ID 79392), mandataire indépendant en immobilier (sans détention de fonds), agent commercial de la SAS I@D France immatriculé au RSAC de Cannes sous le numéro 534765748, titulaire de la carte de démarchage immobilier pour le compte de la société I@D France SAS.
Retrouvez tous nos biens sur notre site internet. www.iadfrance.fr.
Informations LOI ALUR :
Honoraires charge vendeur. (gedeon_6727_32106448)
Voir plus

Référence: 1867293-2
Honoraires à la charge du vendeur.

Prêt immobilier

Vous souhaitez connaître votre capacité d’emprunt et trouver le meilleur crédit immobilier ?
Réaliser une simulation gratuite

Photo 1 - Appartement à CANNES
Photo 1
Photo 2 - Appartement à CANNES
Photo 2
Photo 3 - Appartement à CANNES
Photo 3
Photo 4 - Appartement à CANNES
Photo 4
Photo 5 - Appartement à CANNES
Photo 5
Ce site est protégé par reCAPTCHA la Politique de confidentialité et les Conditions d’utilisation de Google s’appliquent.
Obtenir un prêt immobilier au meilleur taux ?

En poursuivant votre navigation sans modifier vos paramètres, vous acceptez l'utilisation de cookies susceptibles de réaliser des statistiques de visite. Cliquez ici pour plus d'informations