Maison 4p 130,45 m2 dans résidence de standing 30250

— Souvignargues 30250 —
489 000 €
130 m²
4 pièces
parkingbalcon/terrassepiscine

-(ouvert inter-agence) Romanella vous propose une MAISON dans une RESIDENCE de STANDING à Souvignargues 30250. Dans un charmant hameau idéallement situé à 7 km au Nord-Est de Sommières, entre Nîmes et Montpellier et à 35 min des plages.
Découvrez 'Escattes' la résidence d'exception cloturée et sécurisée offrant un cadre de vie remarquable avec sa piscine au sel chauffée et pool house dans son parc de 1200 m2 arborés, un local à vélo complète la copropriété. La résidence est issue d'un mas intégralement repensé pour votre confort avec ses prestations haut de gamme.
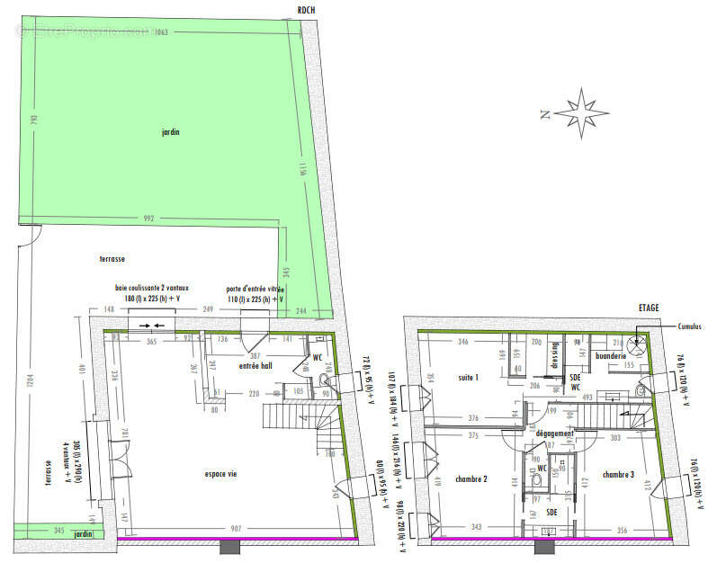
A vendre : Maison 4 pièces de 130,45 m2 comprenant en rdc un espace de vie avec cuisine de 55 m2 et un wc. A l'étage 3 chambres dont une suite avec salle d'eau et dressing, une salle d’eau, une buanderie et un wc.
Un jardin de 155 m2 dont une terrasse de 58 m2 et un garage finissent l'ensemble. Chauffage par climatisation reversible en gainable, chauffe-eau thermodynamique, volets bois persiennes 4 vantaux. Les murs de façade sont en pierres apparentes.
La maison est vendue hors d’eau hors d’air. Aménagement personnalisé avec des prestations de qualité proposé en sus. Livraison avril 2026. Frais de notaire réduits.
Lots disponibles de 130 m2 à 241 m2 habitable dont 1 avec bassin intérieur. Aménagements personnalisés.
'Les informations sur les risques auxquels ce bien est exposé sont disponibles sur le site Géorisques : www.georisques.gouv.fr'. Pour plus de renseignements sur ce bien veuillez contacter votre agent commercial Romanella CHABANON (immatriculé au RSAC de Montpellier No 853 479 780) au [Coordonnées masquées] ou [Coordonnées masquées]. - Annonce rédigée et publiée par un Agent Mandataire -
Voir plus

Référence: 919
Bien en copropriété. Nombre de lots : 6.
Barème des honoraires
DPE
A
B
C
D
E
F
G
GES
A
B
C
D
E
F
G

Prêt immobilier

Vous souhaitez connaître votre capacité d’emprunt et trouver le meilleur crédit immobilier ?
Réaliser une simulation gratuite

Maison à SOUVIGNARGUES
Maison à SOUVIGNARGUES
Maison à SOUVIGNARGUES
Maison à SOUVIGNARGUES
Maison à SOUVIGNARGUES
Maison à SOUVIGNARGUES
Maison à SOUVIGNARGUES
Maison à SOUVIGNARGUES
Maison à SOUVIGNARGUES
Maison à SOUVIGNARGUES
Maison à SOUVIGNARGUES
Maison à SOUVIGNARGUES
Maison à SOUVIGNARGUES
Maison à SOUVIGNARGUES
Ce site est protégé par reCAPTCHA la Politique de confidentialité et les Conditions d’utilisation de Google s’appliquent.
Obtenir un prêt immobilier au meilleur taux ?

En poursuivant votre navigation sans modifier vos paramètres, vous acceptez l'utilisation de cookies susceptibles de réaliser des statistiques de visite. Cliquez ici pour plus d'informations