Terrain viabilisé

— Vincelles 39190 —
68 600 €
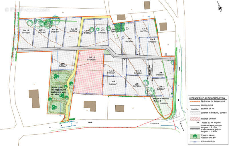
786 m²

Libre choix du constructeur pour ce terrain N°15 à vendre à VAL-SONNETTE dans un lotissement au calme.
Terrain rare et situation recherchée
Situation
A 11 km, 15 mn de Lons Le Saunier
A 61 km, 56 mn de Dole
A 12 km, 13 mn de Orchamps
Accès autoroute Péage de Beaurepaire - A39 - Sortie N°8, A39, 71580 Beaurepaire-en-Bresse à 10 km, 14 mn
Proximité de l'hôpital du Jura - Site de Lons le Saunier 11 km, 15 mn
Terrain profitant d'une belle exposition toute la journée
Terrain prêt à bâtir, viabilisé et borné
Eau potable, eaux usées, gaz, électricité et télécom
Récupération des eaux pluviales sur la parcelle
Equipements de qualités :
Aménagements pérennes (voirie, éclairage public, traitement des eaux pluviales)
Services de proximité :
Commerces et services
Ecoles, cantine, garderie
Transport en communs
Maison médicale ou médecins et spécialistes
Nombreuses associations sportives et culturels
Ce bien est proposé en libre choix de constructeur.
Les informations sur les risques auxquels ce bien est exposé sont disponibles sur le site GEORISQUES
REF;1_5_812
Voir plus

Référence: 1_5_812

Prêt immobilier

Vous souhaitez connaître votre capacité d’emprunt et trouver le meilleur crédit immobilier ?
Réaliser une simulation gratuite

Terrain à VINCELLES
Terrain à VINCELLES
Terrain à VINCELLES
Terrain à VINCELLES
Terrain à VINCELLES
Terrain à VINCELLES
Terrain à VINCELLES
Terrain à VINCELLES
Ce site est protégé par reCAPTCHA la Politique de confidentialité et les Conditions d’utilisation de Google s’appliquent.
Obtenir un prêt immobilier au meilleur taux ?

En poursuivant votre navigation sans modifier vos paramètres, vous acceptez l'utilisation de cookies susceptibles de réaliser des statistiques de visite. Cliquez ici pour plus d'informations