Bénéficiez des services de nos partenaires locaux soigneusement sélectionnés
pour vous accompagner dans votre parcours d'achat immobilier

T2 toulouse st michel

— Toulouse 31400 —
205 000 €
51 m²
2 pièces

Nos partenaires locaux
PROFITEZ DE FRAIS DE NOTAIRE REDUITS SUR CET ACHAT.

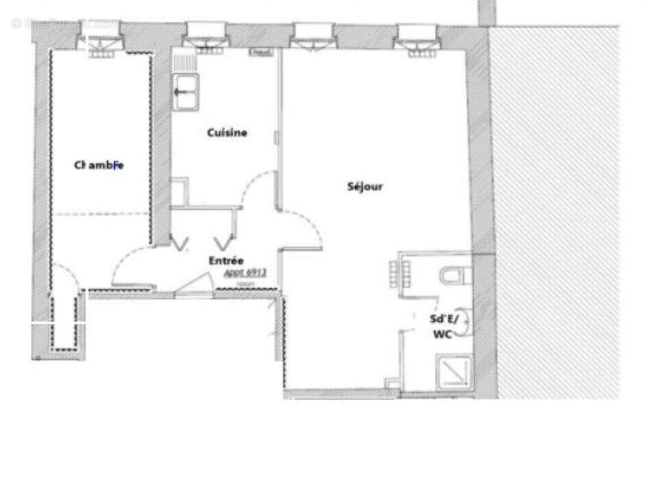
Promologis vend au 62 grande rue St Michel à Toulouse, un T2 de 51,37m² (lgt 6913).

Entièrement refait à neuf, le logement se situe au 1er étage sans ascenseur dans petite copropriété sécurisée de 11 logements.

Composition logement :
Entrée avec placard, séjour de 25 m², cuisine fermée non équipée (possibilité de l'ouvrir sur le séjour), une chambre de 12 m² et une salle d'eau avec WC.

Chauffage individuel au gaz (chaudière neuve).

DPE : C - GES : D. Estimation des couts annuels d'énergie du logement entre 510€ et 750€ (prix moyen des énergies indexés sur l'année 2021, abonnement compris).

Les logements sont vendus sous réserve du respect des dispositions des articles L443 11 et D443-12-1 du Code de la Construction et de l'Habitation.
Visites sur RDV.
Remise des offres d'achat au plus tard le 2 décembre 2025 par e-mail et selon les dispositions consultables sur le site de Promologis.
Sans offre retenue à l'expiration de ce délai, il est reconduit tacitement pour la même durée. Cette reconduction tacite est renouvelable jusqu'à l'acceptation d'une offre par PROMOLOGIS.

Contact B.A.C IMMO

Les informations sur les risques auxquels ce bien est exposé sont disponibles sur le site Géorisques : www. georisques. gouv. fr
Voir plus

Référence: VTEHLM-BL-T2-TLSE_STMICHEL
Bien en copropriété. Nombre de lots : 11. Charges de copropriété : 1601 €.
DPE
A
B
C
D
E
F
G
GES
A
B
C
D
E
F
G

Prêt immobilier

Vous souhaitez connaître votre capacité d’emprunt et trouver le meilleur crédit immobilier ?
Réaliser une simulation gratuite

Appartement à TOULOUSE
Appartement à TOULOUSE
Appartement à TOULOUSE
Appartement à TOULOUSE
Appartement à TOULOUSE
Appartement à TOULOUSE
Appartement à TOULOUSE
Appartement à TOULOUSE
Ce site est protégé par reCAPTCHA la Politique de confidentialité et les Conditions d’utilisation de Google s’appliquent.
Obtenir un prêt immobilier au meilleur taux ?

En poursuivant votre navigation sans modifier vos paramètres, vous acceptez l'utilisation de cookies susceptibles de réaliser des statistiques de visite. Cliquez ici pour plus d'informations