Bénéficiez des services de nos partenaires locaux soigneusement sélectionnés
pour vous accompagner dans votre parcours d'achat immobilier

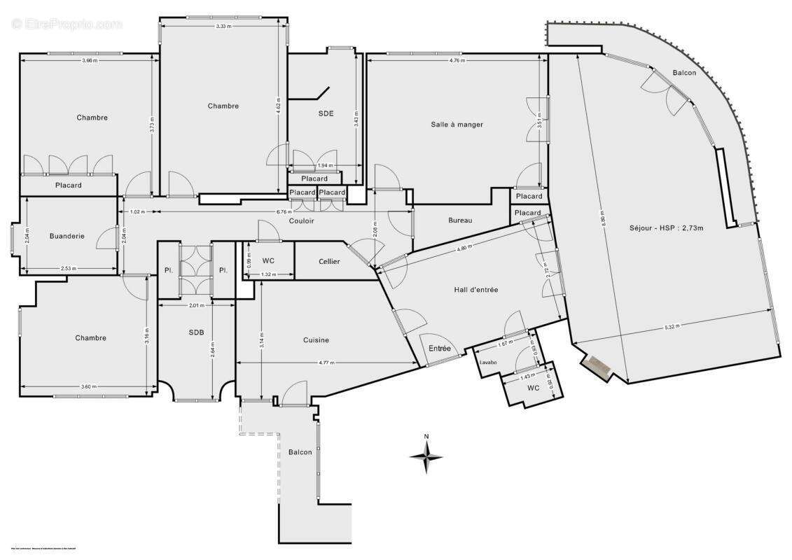
Appartement 4/5 pièces de 166 m² - parking - cave privative - balcon

— Lille 59800 —
989 000 €
166 m²
4 pièces
parkingascenseur

Nos partenaires locaux
[Visite virtuelle complète du bien disponible sur demande]

Liberkeys vous propose cet appartement familial de 166 m² situé dans un secteur prisé à proximité du quai du Wault et de la citadelle. Il se trouve en étage élevé d'une copropriété entretenue et sécurisée.

L'appartement présente des volumes confortables et une distribution adaptée à un usage familial. Une entrée spacieuse vous conduit vers une pièce de vie de 64 m² (salon + salle à manger) qui bénéficie d'une belle luminosité grâce à son exposition d'angle sud, sud/ouest, avec un ensoleillement de l'après-midi jusqu'au coucher du soleil et sans vis-à-vis, et un petit balcon pour profiter encore davantage de la vue sur les jardins Vauban.

L'espace nuit comprend trois grandes chambres, dont une avec salle d'eau privative. Une salle de bains supplémentaire, une buanderie et deux toilettes complètent l'ensemble.

L'aménagement offre plusieurs possibilités, notamment la création simple d'une quatrième chambre, communiquant avec la salle d'eau. tout en conservant une pièce de vie de 46 m². De nombreux rangements intégrés sont présents dans l'appartement.

Une cave saine et ventilée complète le bien, et il est possible d'acquérir une place de parking privative dans l'immeuble.

Le secteur Liberté–Vauban permet un accès rapide aux axes routiers et aux communes limitrophes (Lambersart, La Madeleine…). La proximité immédiate de la Citadelle, des bords de Deûle et des établissements scolaires et universitaires constitue un atout pour les familles comme pour les étudiants.

Charges de copropriété : 1 500 €/trimestre (eau froide, eau chaude, chauffage, ascenseurs). Taxe foncière : 3 165  €

Montant estimé des dépenses annuelles d'énergie pour un usage standard : entre 1 500 € et 2 080 € par an. Prix moyens des énergies indexés sur l'année 2021 (abonnements compris).

Ce bien vous plaît ? visite virtuelle sur demande, contactez moi directement. Lo Certo Sébastien, agent commercial immatriculé au RSAC de Lille sous le numéro 837791896. Référence annonce : DOM25163. Date de réalisation du diagnostic : 21/05/2023. Les honoraires sont à la charge du vendeur.
Voir plus

Référence: DOM25163
Bien en copropriété. Nombre de lots : 23. Charges de copropriété : 513 €.
Honoraires à la charge du vendeur.
DPE
A
B
C
D
E
F
G
GES
A
B
C
D
E
F
G

Prêt immobilier

Vous souhaitez connaître votre capacité d’emprunt et trouver le meilleur crédit immobilier ?
Réaliser une simulation gratuite

Appartement à LILLE
Appartement à LILLE
Appartement à LILLE
Appartement à LILLE
Appartement à LILLE
Appartement à LILLE
Appartement à LILLE
Appartement à LILLE
Appartement à LILLE
Appartement à LILLE
Appartement à LILLE
Appartement à LILLE
Ce site est protégé par reCAPTCHA la Politique de confidentialité et les Conditions d’utilisation de Google s’appliquent.
Obtenir un prêt immobilier au meilleur taux ?

En poursuivant votre navigation sans modifier vos paramètres, vous acceptez l'utilisation de cookies susceptibles de réaliser des statistiques de visite. Cliquez ici pour plus d'informations