3%.com - eckwersheim, corps de ferme 136m2,hangar,cour

— Eckwersheim 67550 —
279 000 €
136 m² / 750 m²
6 pièces
parkingjardin

3%.COM - à ECKWERSHEIM, corps de ferme composé d'une maison d'habitation de 136m2 à rafraîchir en totalité et d'une dépendance (hangar) d'environ 170m2, cour, petit jardin, garages, cave et de nombreux espaces de stockage, Le tout sur une parcelle de 7,50ares.

!!! IDÉAL INVESTISSEURS OU ARTISANS !!!

--- Vous recherchez un bien à rénover, à transformer à vos goûts, la qualité de vie d'un village de l'eurometropole , alors n'hésitez pas et venez visiter ce bien.

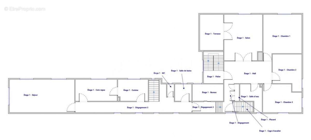
--- BÂTIMENT 1 (maison d'habitation rénovée en 1975 à rafraîchir):
-- Au rez-de-chaussée:
- 1 entrée donnant accès au 1er étage.
- 1 garage triple (sortie côté rue).

-- Au premier étage:
- 1 entrée/couloir donnant accès au Bâtiment 2 en demi-niveau haut..
- 1 cuisine indépendante avec salle à manger attenante.
- 1 salon/séjour.
- 1 wc séparé.
- 1 salle de bain.
- 1 pièce/bureau.

--- BÂTIMENT 2 (extension des années 80 du Bâtiment 1):
-- Au rez-de-chaussée:
- 1 entrée donnant accès au 1er étage.
- 1 garage double (sortie côté cour).
- 1 grande pièce de stockage + chaufferie.
- 1 wc.
- 1 douche.

-- Au premier étage:
- 1 grand dégagement.
- 1 couloir équipé de rangements donnant accès au 1er étage du bâtiment 1 en demi-niveau bas ainsi qu'au 2ème étage (comble aménageable).
- 1 petit salon avec accès à une terrasse couverte.
- 1 pièce d'eau équipée d'un wc et d'un lavabo.
- 3 chambres.

-- Au deuxième étage:
- 1 grand comble aménageable.

--- BÂTIMENT 3 (hangar):
- 1 grand espace de stockage d'environ 170m2 avec accès à un petit jardin.

-- À l'extérieur:
- Une grande cour pouvant accueillir plusieurs véhicules.

-- Autres informations:
- Bien à rafraîchir et/ou à rénover.
- Possibilité de créer des logements distincts - idéal pour investisseurs ou artisans.
- Fenêtres double vitrage bois
- Chaudière fioul.
- DPE: G.

-- Principales distances:
Schilt.Parc Euro Entrep: 15 min, 16 km.
Strasbourg centre: 24 min, 20 km.
Saverne: 30 min, 39 km.
Brumath: 9 min, 7 km.
Centre commerciale Cora Mundo : 10 min, 5 km

--Contactez Sébastien au [Coordonnées masquées] ou [Coordonnées masquées].
Du lundi au samedi de 9h00 à 19h00.
Agent Commercial en Immobilier, inscrit au RSAC Strasbourg No 797 569 951.
-- Agence Immobilière ROTH IMMOBILIER Sarl, franchisé 3%.COM, RCS 803 863 638.
-- Agence et vitrines à Hochfelden, siège à Gimbrett-Kochersberg.
-- Réseau national à honoraires réduits: 3% TTC.
Les informations sur les risques auxquels ce bien est exposé sont disponibles sur le site Géorisques : www.georisques.gouv.fr - Annonce rédigée et publiée par un Agent Mandataire -
Voir plus

Référence: 55_V1000062312
Honoraires d'agence de 2.99% à la charge de l'acquéreur
DPE
A
B
C
D
E
F
G
GES
A
B
C
D
E
F
G

Prêt immobilier

Vous souhaitez connaître votre capacité d’emprunt et trouver le meilleur crédit immobilier ?
Réaliser une simulation gratuite

Maison à ECKWERSHEIM
Maison à ECKWERSHEIM
Maison à ECKWERSHEIM
Maison à ECKWERSHEIM
Maison à ECKWERSHEIM
Maison à ECKWERSHEIM
Maison à ECKWERSHEIM
Maison à ECKWERSHEIM
Maison à ECKWERSHEIM
Maison à ECKWERSHEIM
Maison à ECKWERSHEIM
Maison à ECKWERSHEIM
Maison à ECKWERSHEIM
Maison à ECKWERSHEIM
Maison à ECKWERSHEIM
Maison à ECKWERSHEIM
Maison à ECKWERSHEIM
Maison à ECKWERSHEIM
Maison à ECKWERSHEIM
Maison à ECKWERSHEIM
Maison à ECKWERSHEIM
Ce site est protégé par reCAPTCHA la Politique de confidentialité et les Conditions d’utilisation de Google s’appliquent.
Obtenir un prêt immobilier au meilleur taux ?

En poursuivant votre navigation sans modifier vos paramètres, vous acceptez l'utilisation de cookies susceptibles de réaliser des statistiques de visite. Cliquez ici pour plus d'informations