Bénéficiez des services de nos partenaires locaux soigneusement sélectionnés
pour vous accompagner dans votre parcours d'achat immobilier

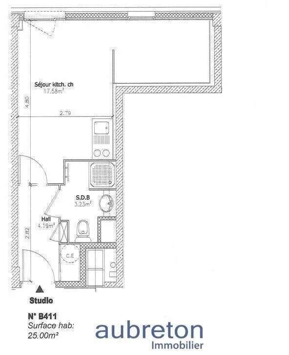
Studio pour investisseur de 25m²

— Grenoble 38100 —
58 000 €
25 m²
1 pièce
ascenseuraccès handicapé

Nos partenaires locaux
L’AGENCE AUBRETON / Peggy BOUYOUD, Agent Commercial en immobilier O6.51.25.O9.6O (n°RSAC de Vienne 889 737 409) vous propose à la vente sur :

GRENOBLE Vigny Musset, ce grand studio de 25m² avec un coin nuit séparé de la pièce de vie.

Vente avec locataire en place depuis Août 2023.

Loué 334 € hors charges et 36 € de provisions pour charges. Taxe foncière 2025 de 993 € comprenant les ordures ménagères.

L’appartement se compose d’un hall d’entrée avec placard de 4.19 m², d’une salle de bains avec wc et douche de 3.23m², d’une kitchenette ouverte sur la pièce de vie et d’un coin nuit fermé par une demi cloison de 17.58m². Deux fenêtres en double vitrage.

Immeuble de 15 ans avec ascenseur et local vélo. Faibles charges de copropriété.

Tavaux de réfection d’étanchéité de la couverture votés et financés par le vendeur.

Chauffage et eau chaude individuel électrique. Eau froide collective.

La note énergétique est en D avec une consommation de 473 à 640 € par an pour le chauffage.

Le bien est disponible.

Écoles à proximité : Institut d'urbanisme et de Géographie Alpine, Ecole nationale supérieure d'architecture, Institut des métiers et techniques et le Lycée hôtelier Lesdiguières - Site Clos d'or

Transports à proximité : Tram A à proximité et Bus C3 et C5
Voir plus

Référence: 1696
DPE
A
B
C
D
E
F
G
GES
A
B
C
D
E
F
G

Prêt immobilier

Vous souhaitez connaître votre capacité d’emprunt et trouver le meilleur crédit immobilier ?
Réaliser une simulation gratuite

Appartement à GRENOBLE
Appartement à GRENOBLE
Appartement à GRENOBLE
Appartement à GRENOBLE
Appartement à GRENOBLE
Appartement à GRENOBLE
Appartement à GRENOBLE
Appartement à GRENOBLE
Appartement à GRENOBLE
Appartement à GRENOBLE
Appartement à GRENOBLE
Appartement à GRENOBLE
Appartement à GRENOBLE
Appartement à GRENOBLE
Appartement à GRENOBLE
Appartement à GRENOBLE
Appartement à GRENOBLE
Ce site est protégé par reCAPTCHA la Politique de confidentialité et les Conditions d’utilisation de Google s’appliquent.
Obtenir un prêt immobilier au meilleur taux ?

En poursuivant votre navigation sans modifier vos paramètres, vous acceptez l'utilisation de cookies susceptibles de réaliser des statistiques de visite. Cliquez ici pour plus d'informations