A vendre - appartement 3 chambres - ile de la cité - vue exceptionnelle

— Paris-1e 75001 —
4 410 000 €
145 m²
5 pièces
ascenseur

L'agence Michaël Zingraf vous propose:

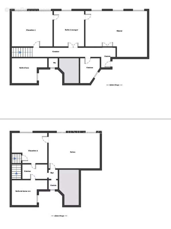
Au cœur de l’Île de la Cité, dans l’un des emplacements les plus emblématiques de Paris, cet appartement en duplex de 145 m² occupe le 3ème et le 4ème étage d’un immeuble de caractère avec ascenseur.

Dès l’entrée, le charme opère : le hall de l’immeuble, classé monument historique, témoigne de l’élégance et du prestige des lieux.

À l’intérieur, la lumière s’invite généreusement par huit grandes fenêtres donnant directement sur la Seine.

La vue est tout simplement exceptionnelle : un panorama ouvert sur le fleuve et sur la Samaritaine, offrant une perspective unique et rare au cœur de la capitale.

L’espace de vie s’étend sur plus de 100 m² au 3e étage, complété par 42 m² supplémentaires au 4e étage.

Sa configuration permet d’imaginer un aménagement raffiné, avec jusqu’à trois chambres, tout en préservant de généreux espaces de réception.

L’appartement nécessite une rénovation complète, offrant ainsi une liberté totale d’aménagement et la possibilité de créer un lieu sur mesure, à la hauteur de cette adresse d’exception.

Une cave complète ce bien.

(5.00 % d'honoraires TTC à la charge de l'acquéreur.)
Copropriété de 36 lots.

Pas de procédure en cours

DPE 304 / E
GES 39 / B

www.georisques.gouv.fr
Voir plus

Référence: MZIPARG247
DPE
A
B
C
D
E
F
G
GES
A
B
C
D
E
F
G

Prêt immobilier

Vous souhaitez connaître votre capacité d’emprunt et trouver le meilleur crédit immobilier ?
Réaliser une simulation gratuite

Appartement à PARIS-1E
Appartement à PARIS-1E
Appartement à PARIS-1E
Appartement à PARIS-1E
Appartement à PARIS-1E
Appartement à PARIS-1E
Appartement à PARIS-1E
Appartement à PARIS-1E
Appartement à PARIS-1E
Appartement à PARIS-1E
Appartement à PARIS-1E
Appartement à PARIS-1E
Appartement à PARIS-1E
Appartement à PARIS-1E
Appartement à PARIS-1E
Appartement à PARIS-1E
Appartement à PARIS-1E
Appartement à PARIS-1E
Appartement à PARIS-1E
Appartement à PARIS-1E
Ce site est protégé par reCAPTCHA la Politique de confidentialité et les Conditions d’utilisation de Google s’appliquent.
Obtenir un prêt immobilier au meilleur taux ?

En poursuivant votre navigation sans modifier vos paramètres, vous acceptez l'utilisation de cookies susceptibles de réaliser des statistiques de visite. Cliquez ici pour plus d'informations