Bénéficiez des services de nos partenaires locaux soigneusement sélectionnés
pour vous accompagner dans votre parcours d'achat immobilier

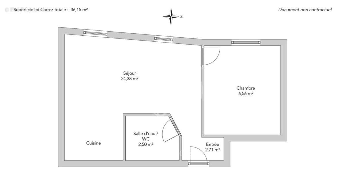
Paris 18e - marché lepic - appartement à vendre - 2 pièces - 36,15m² carrez - 1 chambre - lumineux.

— Paris-18e 75018 —
419 000 €
36 m²
2 pièces

Nos partenaires locaux
À deux pas des commerces emblématiques de la rue Lepic, dans la partie semi-piétonne, au troisième étage d’un immeuble ancien soigneusement entretenu, se niche ce charmant deux-pièces de 36,15 m² loi Carrez, baigné de lumière grâce à sa double exposition OUEST.

Parfaitement agencé, il se compose d’une entrée, d’un vaste séjour de 24.5 m² lumineux avec deux fenêtres, d’une cuisine ouverte conviviale, d’une chambre avec rangements intégrés et d’une salle de douche avec sanibroyeur.

Un écrin de charme et de fonctionnalité, au cœur de l’authentique Montmartre, entre calme, lumière et vie de quartier.
Voir plus

Référence: 3198ABBLEV2
Barème des honoraires
DPE
A
B
C
D
E
F
G
GES
A
B
C
D
E
F
G

Prêt immobilier

Vous souhaitez connaître votre capacité d’emprunt et trouver le meilleur crédit immobilier ?
Réaliser une simulation gratuite

Appartement à PARIS-18E
Appartement à PARIS-18E
Appartement à PARIS-18E
Appartement à PARIS-18E
Appartement à PARIS-18E
Appartement à PARIS-18E
Appartement à PARIS-18E
Appartement à PARIS-18E
Appartement à PARIS-18E
Appartement à PARIS-18E
Appartement à PARIS-18E
Appartement à PARIS-18E
Ce site est protégé par reCAPTCHA la Politique de confidentialité et les Conditions d’utilisation de Google s’appliquent.
Obtenir un prêt immobilier au meilleur taux ?

En poursuivant votre navigation sans modifier vos paramètres, vous acceptez l'utilisation de cookies susceptibles de réaliser des statistiques de visite. Cliquez ici pour plus d'informations