Bénéficiez des services de nos partenaires locaux soigneusement sélectionnés
pour vous accompagner dans votre parcours d'achat immobilier

Montreuil limite fontenay, 3 pieces recent lumineux vendu loue, fin de bail 2027.

— Montreuil 93100 —
265 957 €
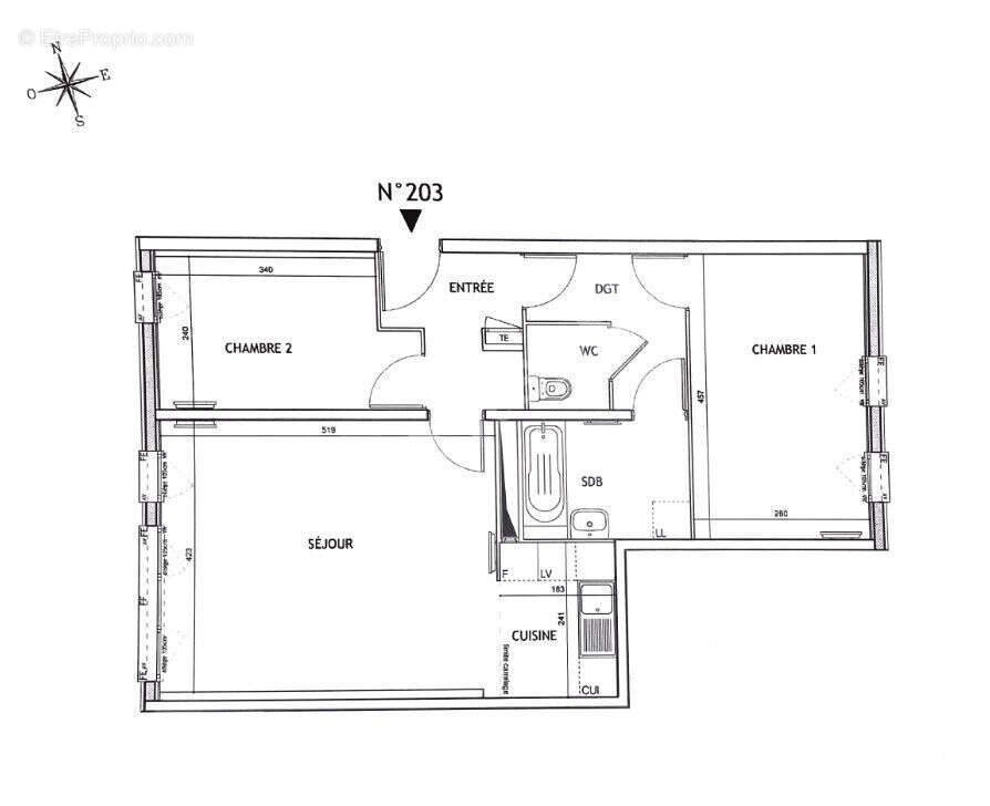
62 m²
3 pièces
parking

Nos partenaires locaux
MONTREUIL LIMITE FONTENAY, 3 PIECES RECENT LUMINEUX VENDU LOUE, FIN DE BAIL 2027. Au calme dans une belle résidence récente (2016) à proximité du parc MONTREAU, des commerces et écoles, appartement 3 pièces avec entrée, séjour/cuisine, dégagement, deux chambres, salle de bains, WC séparés, grand parking. Appartement actuellement loué 1068 euros par mois hors charges, fin de bail novembre 2027. Copropriété de 89 lots - dont 50 lots habitation. Charges annuelles : 2805 euros.

Référence: 03263
Bien en copropriété. Nombre de lots : 89. Charges de copropriété : 2805 €. Procédure en cours : Procédure en cours.
Honoraires à la charge du vendeur.
Barème des honoraires
DPE
A
B
C
D
E
F
G
GES
A
B
C
D
E
F
G

Prêt immobilier

Vous souhaitez connaître votre capacité d’emprunt et trouver le meilleur crédit immobilier ?
Réaliser une simulation gratuite

Appartement à MONTREUIL
Appartement à MONTREUIL
Appartement à MONTREUIL
Appartement à MONTREUIL
Appartement à MONTREUIL
Appartement à MONTREUIL
Appartement à MONTREUIL
Ce site est protégé par reCAPTCHA la Politique de confidentialité et les Conditions d’utilisation de Google s’appliquent.
Obtenir un prêt immobilier au meilleur taux ?

En poursuivant votre navigation sans modifier vos paramètres, vous acceptez l'utilisation de cookies susceptibles de réaliser des statistiques de visite. Cliquez ici pour plus d'informations