Bénéficiez des services de nos partenaires locaux soigneusement sélectionnés
pour vous accompagner dans votre parcours d'achat immobilier

Neuilly - dulud - charme de l'ancien 2 chambres

— Neuilly-Sur-Seine 92200 —
795 000 €
67 m²
3 pièces
ascenseur

Nos partenaires locaux
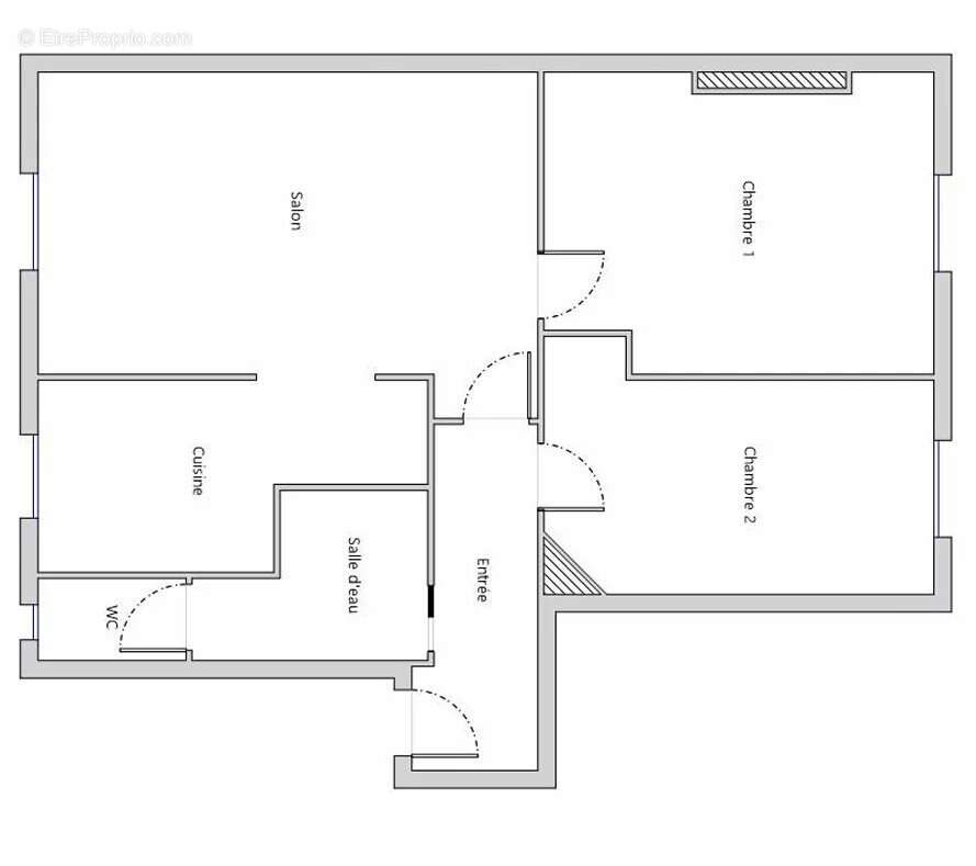
L’agence MAXIME DESPÈRES vous propose, à proximité immédiate du Bois, cet appartement traversant de 66.67 m², situé au 3e étage avec ascenseur d’une copropriété ancienne de bon standing. Ce bien en parfait état se compose d’une entrée, d’un séjour exposé Sud, d’une cuisine meublée et entièrement équipée, de deux chambres, d’une salle d’eau, de toilettes séparées ainsi que de nombreux rangements.
Une cave complète ce bien.
Un appartement fonctionnel et idéalement situé, à proximité immédiate des commerces, des transports et des espaces verts.
Honoraires à la charge de l'acquéreur de 1% (prix hors honoraires:787 050€). Pas de procédure en cours. Charges annuelle:2 395€/an. Nombre total de lots :30. Lots d’habitation : 13. Les informations sur les risques auxquels ce bien est exposé sont disponibles sur le site Géorisques.
Voir plus

Référence: 86407258
Barème des honoraires
DPE
A
B
C
D
E
F
G
GES
A
B
C
D
E
F
G

Prêt immobilier

Vous souhaitez connaître votre capacité d’emprunt et trouver le meilleur crédit immobilier ?
Réaliser une simulation gratuite

Appartement à NEUILLY-SUR-SEINE
Appartement à NEUILLY-SUR-SEINE
Appartement à NEUILLY-SUR-SEINE
Appartement à NEUILLY-SUR-SEINE
Appartement à NEUILLY-SUR-SEINE
Appartement à NEUILLY-SUR-SEINE
Appartement à NEUILLY-SUR-SEINE
Appartement à NEUILLY-SUR-SEINE
Appartement à NEUILLY-SUR-SEINE
Appartement à NEUILLY-SUR-SEINE
Appartement à NEUILLY-SUR-SEINE
Appartement à NEUILLY-SUR-SEINE
Appartement à NEUILLY-SUR-SEINE
Appartement à NEUILLY-SUR-SEINE
Ce site est protégé par reCAPTCHA la Politique de confidentialité et les Conditions d’utilisation de Google s’appliquent.
Obtenir un prêt immobilier au meilleur taux ?

En poursuivant votre navigation sans modifier vos paramètres, vous acceptez l'utilisation de cookies susceptibles de réaliser des statistiques de visite. Cliquez ici pour plus d'informations