Bénéficiez des services de nos partenaires locaux soigneusement sélectionnés
pour vous accompagner dans votre parcours d'achat immobilier

Etage élevé avec ascenseur, calme et sans vis à vis

— Paris-18e 75018 —
765 000 €
65 m²
3 pièces
ascenseur

Nos partenaires locaux
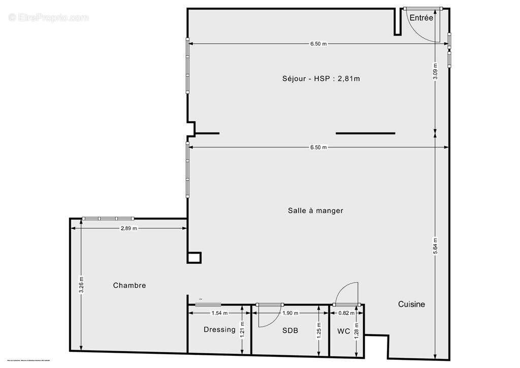
75018- Paris, Sacré-Cœur-Appartement lumineux de 65m² avec ascenseur.
Dans une copropriété bien entretenue, situé au 6ème étage avec ascenseur, cet appartement de 65 m² vous séduira par sa luminosité, son absence de vis-à-vis et son agencement optimisé.
Il offre une vaste pièce de vie baignée de lumière, une cuisine ouverte aménagée qui allie convivialité et fonctionnalité, une chambre au calme, un dressing, une salle de bains, et des toilettes séparées. Une seconde chambre avec fenêtre est facilement aménageable avec une simple cloison.
Un emplacement vélo est présent au rez-de-chaussée de cet immeuble.
Voir plus

Référence: 1196
DPE
A
B
C
D
E
F
G
GES
A
B
C
D
E
F
G

Prêt immobilier

Vous souhaitez connaître votre capacité d’emprunt et trouver le meilleur crédit immobilier ?
Réaliser une simulation gratuite

Appartement à PARIS-18E
Appartement à PARIS-18E
Appartement à PARIS-18E
Appartement à PARIS-18E
Appartement à PARIS-18E
Appartement à PARIS-18E
Appartement à PARIS-18E
Appartement à PARIS-18E
Appartement à PARIS-18E
Ce site est protégé par reCAPTCHA la Politique de confidentialité et les Conditions d’utilisation de Google s’appliquent.
Obtenir un prêt immobilier au meilleur taux ?

En poursuivant votre navigation sans modifier vos paramètres, vous acceptez l'utilisation de cookies susceptibles de réaliser des statistiques de visite. Cliquez ici pour plus d'informations