Bénéficiez des services de nos partenaires locaux soigneusement sélectionnés
pour vous accompagner dans votre parcours d'achat immobilier

Appartement boulogne billancourt 4 pièce(s)

— Boulogne-Billancourt 92100 —
920 000 €
105 m²
4 pièces
parkingbalcon/terrasseascenseur

Nos partenaires locaux
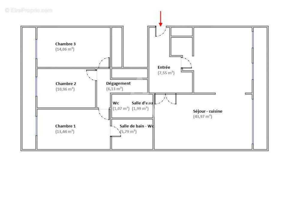
Idéalement situé dans le quartier Silly-Galliéni, au sein d'une résidence bien entretenue avec gardien , à proximité des transports, écoles, commerces et bords de Seine, cet appartement coche toutes les cases d'un bien polyvalent. Niché au 5ème étage, ce T4 offre un cadre de vie lumineux, confortable et très agréable à vivre. L'espace de vie, orienté sud, se compose d'un séjour spacieux avec balcon filant sans vis-à-vis, et d'une cuisine ouverte à la fois moderne et conviviale. La partie nuit, séparée pour plus d'intimité, est orientée nord et se compose comme suit: - Une suite parentale avec sa salle de bain et WC privatifs, - Deux autres chambres avec rangements, - Une salle d'eau indépendante, - Un WC séparé supplémentaire Deux balcons filants de 10 m², accessibles depuis plusieurs pièces, permettent de profiter pleinement de l'extérieur toute l'année. Ses atouts : - Traversant sud /nord, lumineux et bien ventilé - Double balcon avec vue dégagée - Agencement optimisé avec séparation jour/nuit Deux places de parking en sous-sol complètent ce bien ainsi qu'une cave privative Une visite s'impose pour en découvrir tout le potentiel. (3.95 % honoraires TTC à la charge de l'acquéreur.) Copropriété de 756 lots - dont 250 lots habitation. (Pas de procédure en cours). Charges annuelles : 5089 euros.
Voir plus

Référence: 1969
Bien en copropriété. Nombre de lots : 756. Charges de copropriété : 5089 €.
Honoraires d'agence de 3.95% à la charge de l'acquéreur
Barème des honoraires
DPE
A
B
C
D
E
F
G
GES
A
B
C
D
E
F
G

Prêt immobilier

Vous souhaitez connaître votre capacité d’emprunt et trouver le meilleur crédit immobilier ?
Réaliser une simulation gratuite

Appartement à BOULOGNE-BILLANCOURT
Appartement à BOULOGNE-BILLANCOURT
Appartement à BOULOGNE-BILLANCOURT
Appartement à BOULOGNE-BILLANCOURT
Appartement à BOULOGNE-BILLANCOURT
Appartement à BOULOGNE-BILLANCOURT
Appartement à BOULOGNE-BILLANCOURT
Appartement à BOULOGNE-BILLANCOURT
Appartement à BOULOGNE-BILLANCOURT
Appartement à BOULOGNE-BILLANCOURT
Appartement à BOULOGNE-BILLANCOURT
Ce site est protégé par reCAPTCHA la Politique de confidentialité et les Conditions d’utilisation de Google s’appliquent.
Obtenir un prêt immobilier au meilleur taux ?

En poursuivant votre navigation sans modifier vos paramètres, vous acceptez l'utilisation de cookies susceptibles de réaliser des statistiques de visite. Cliquez ici pour plus d'informations