Bénéficiez des services de nos partenaires locaux soigneusement sélectionnés
pour vous accompagner dans votre parcours d'achat immobilier

Voir tous les partenaires locaux

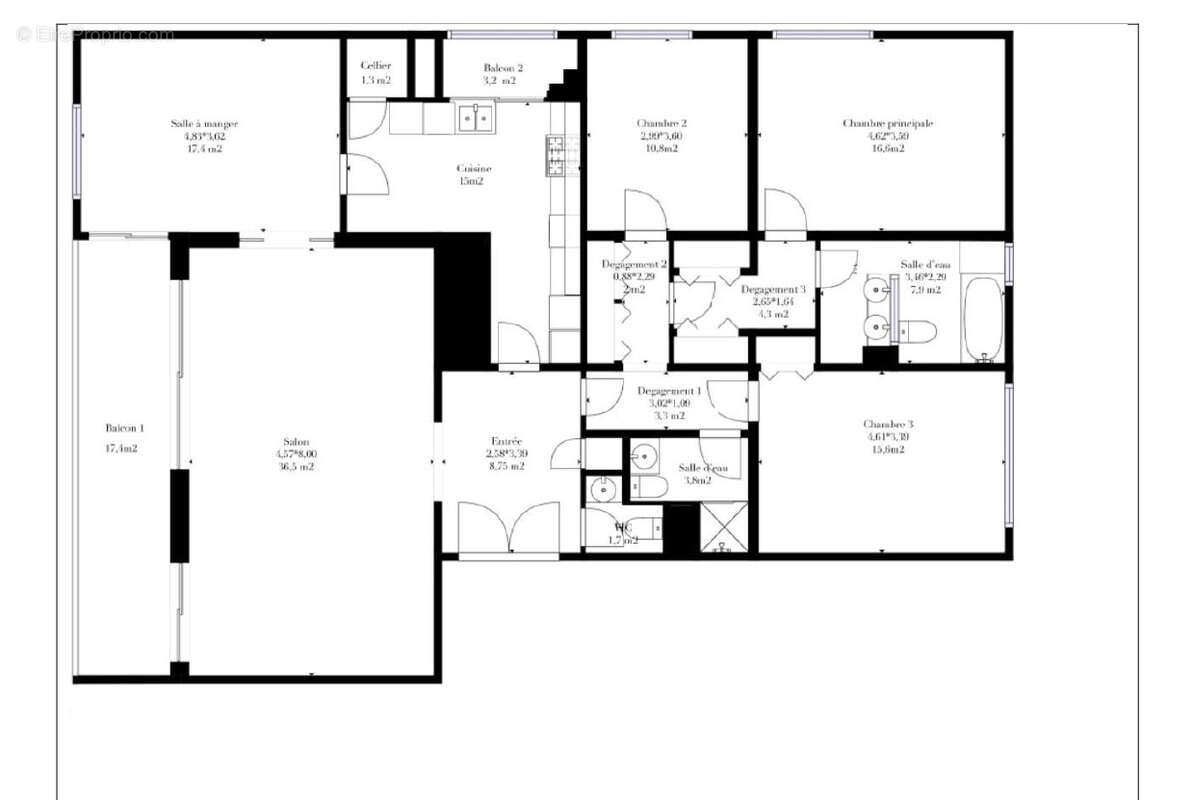
Appartement avec terrasse et parking - caudéran

— Bordeaux 33000 —
619 000 €
148 m²
5 pièces
parkingascenseur

Nos partenaires locaux
BORDEAUX - CAUDERAN PASTEUR. L'agence GRANGE-DELMAS IMMOBILIER vous propose à la vente ce très bel appartement situé au 2ème étage d'une résidence de standing sécurisée avec gardien. L'appartement se compose d'une large entrée, un séjour double ouvrant sur la terrasse bien exposée qui surplombe un magnifique parc arboré et offre une vue très dégagée. La belle cuisine neuve ndépendante avec arrière cuisine donne également sur une terrasse. Un dégagement avec placards dessert l'espace nuit qui accueille 3 chambres, une salle de bain et une salle d'eau. Une cave et une place de parking en sous sol complètent ce bel appartement lumineux, aux volumes généreux proche du centre de Caudéran, des écoles, des commerces et transports. Possibilité également de garer une autre voiture dans l'enceinte de la résidence. Prix : 619.000 EUR (4.92 % honoraires TTC à la charge de l'acquéreur.)
Voir plus

Référence: 15013
Honoraires d'agence de 4.92% à la charge de l'acquéreur

Prêt immobilier

Vous souhaitez connaître votre capacité d’emprunt et trouver le meilleur crédit immobilier ?
Réaliser une simulation gratuite

Appartement à BORDEAUX
Appartement à BORDEAUX
Appartement à BORDEAUX
Appartement à BORDEAUX
Appartement à BORDEAUX
Appartement à BORDEAUX
Appartement à BORDEAUX
Appartement à BORDEAUX
Appartement à BORDEAUX
Appartement à BORDEAUX
Ce site est protégé par reCAPTCHA la Politique de confidentialité et les Conditions d’utilisation de Google s’appliquent.
Obtenir un prêt immobilier au meilleur taux ?

En poursuivant votre navigation sans modifier vos paramètres, vous acceptez l'utilisation de cookies susceptibles de réaliser des statistiques de visite. Cliquez ici pour plus d'informations