Bénéficiez des services de nos partenaires locaux soigneusement sélectionnés
pour vous accompagner dans votre parcours d'achat immobilier

Villa vensac océan 5 pièce(s) + 126 m2

— Vensac 33590 —
298 500 €
127 m² / 893 m²
5 pièces
jardin

Nos partenaires locaux
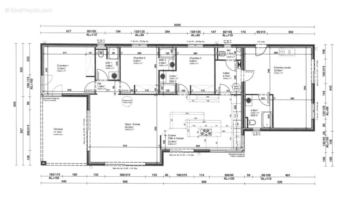
VENSAC OCEAN Maison de + 126 m² à terminer sur terrain de 893 m². La maison se compose d'une pièce de vie de +49 m², une suite parentale (possibilité studio), trois chambres avec placard, dont deux avec salle d'eau, une salle d'eau/wc, un wc et un cellier. Terrasse couverte de 17 m². Pour plus de renseignements, n'hésitez pas à nous contacter (5.48 % honoraires TTC à la charge de l'acquéreur.)

Référence: 1114
Honoraires d'agence de 5.48% à la charge de l'acquéreur
Barème des honoraires

Prêt immobilier

Vous souhaitez connaître votre capacité d’emprunt et trouver le meilleur crédit immobilier ?
Réaliser une simulation gratuite

Maison à VENSAC
Maison à VENSAC
Maison à VENSAC
Maison à VENSAC
Ce site est protégé par reCAPTCHA la Politique de confidentialité et les Conditions d’utilisation de Google s’appliquent.
Obtenir un prêt immobilier au meilleur taux ?

En poursuivant votre navigation sans modifier vos paramètres, vous acceptez l'utilisation de cookies susceptibles de réaliser des statistiques de visite. Cliquez ici pour plus d'informations