Maison 119m² à montpezat

— Montpezat 32220 —
107 000 €
119 m² / 20 126 m²
5 pièces
jardin

Située dans la commune de Montpézat (32220), cette maison mitoyenne d'un côté bénéficie d'un environnement paisible et verdoyant, idéal pour les amateurs de tranquillité et de nature. Montpézat offre un cadre de vie agréable avec ses paysages préservés et sa proximité avec des sentiers de randonnée, parfait pour les activités en plein air. De plus, la ville propose une atmosphère conviviale et des commodités essentielles à quelques minutes de la propriété.

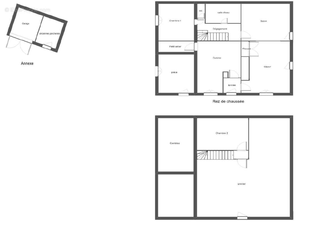
Cette maison de 119 m² s'étend sur un vaste terrain de 20126 m², offrant un espace extérieur généreux et propice à de multiples projets. Avec 5 pièces au total, dont 2 chambres, elle offre des possibilités d'aménagement intéressantes. L'intérieur, à la surface habitable confortable, représente un potentiel d'aménagement et de personnalisation selon les besoins et goûts des futurs propriétaires. Sa situation en semi-mitoyenneté procure à la fois intimité et convivialité, pour un cadre de vie alliant tranquillité et praticité. Ce bien est non soumis au DPE;

Les informations sur les risques auxquels ce bien est exposé sont disponibles sur le site Géorisques : www.georisques.gouv.fr
Prix de vente : 107 000 ¤
Honoraires charge vendeur

Contactez votre conseiller SAFTI : Jean-Luc ABRAHAMI, Tél. : [Coordonnées masquées], E-mail : [Coordonnées masquées] - EI - Agent commercial immatriculé au RSAC de FOIX sous le numéro 508 363 462.
Informations LOI ALUR :
Honoraires charge vendeur. (gedeon_26118_32106148)
Voir plus

Référence: 1535675
Honoraires à la charge du vendeur.
Barème des honoraires

Prêt immobilier

Vous souhaitez connaître votre capacité d’emprunt et trouver le meilleur crédit immobilier ?
Réaliser une simulation gratuite

Photo 1 - Maison à MONTPEZAT
Photo 1
Photo 2 - Maison à MONTPEZAT
Photo 2
Photo 3 - Maison à MONTPEZAT
Photo 3
Photo 4 - Maison à MONTPEZAT
Photo 4
Photo 5 - Maison à MONTPEZAT
Photo 5
Photo 6 - Maison à MONTPEZAT
Photo 6
Photo 7 - Maison à MONTPEZAT
Photo 7
Photo 8 - Maison à MONTPEZAT
Photo 8
Ce site est protégé par reCAPTCHA la Politique de confidentialité et les Conditions d’utilisation de Google s’appliquent.
Obtenir un prêt immobilier au meilleur taux ?

En poursuivant votre navigation sans modifier vos paramètres, vous acceptez l'utilisation de cookies susceptibles de réaliser des statistiques de visite. Cliquez ici pour plus d'informations