Appartement 125m² à combloux

— Combloux 74920 —
1 300 000 €
125 m²
5 pièces
parkingbalcon/terrasseascenseurpiscine

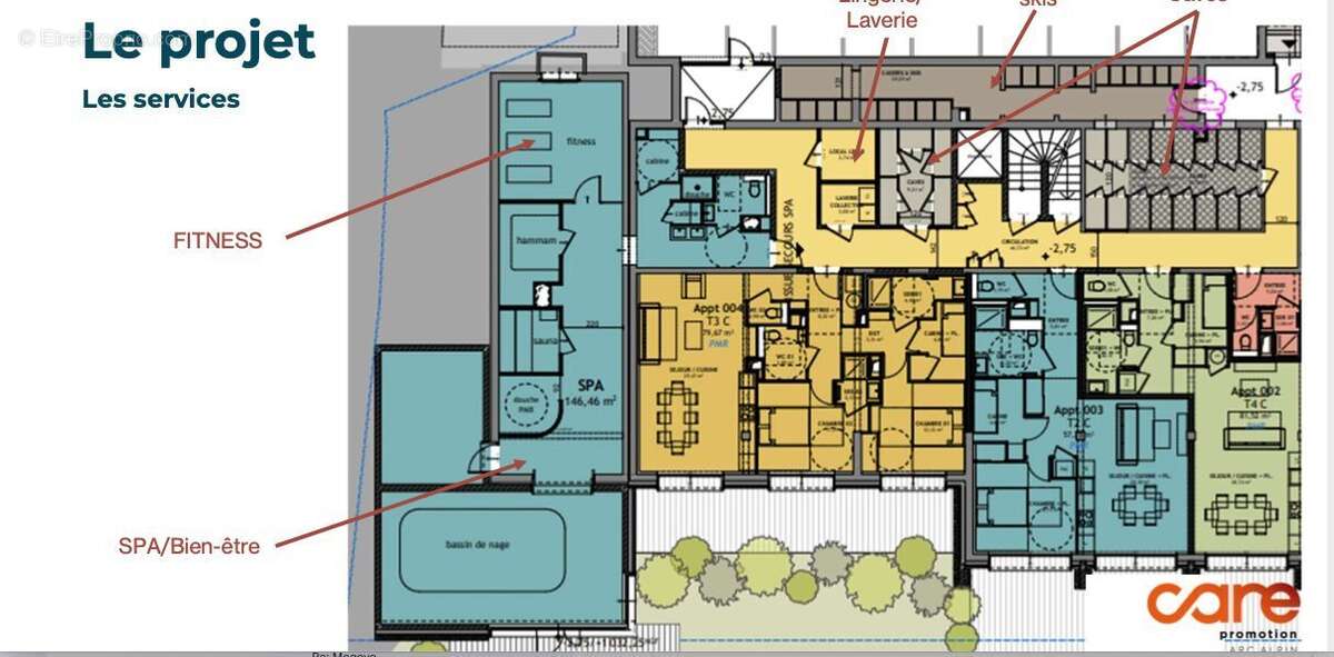
Au coeur d'un environnement préserve et entoure d'alpages, la résidence 'Au Coeur des Pres' s'inscrit avec subtilité et discrétion dans l'écrin qui est le sien. Matières nobles par excellence, le bois et la pierre célèbrent le style des fermes d'antan, dans une association mise en lumière par un design soigne.Verticalités et trames horizontales détaillent les volumes de la résidence, soulignant ainsi les nombreuses ouvertures qui animent sa façade.Alliance réussie du cachet de l'ancien a la modernité de lignes raffinées, 'Au Coeur des Prés' livre une signature architecturale inspirée.En position dominante sur le vallon qu'elle épouse, la résidence se mue en un véritable promontoire. Jardins et balcons offrent ainsi une scène ouverte sur le paysage environnant. Majesté des lignes de crêtes et profondeur du panorama proposent une expérience visuelle unique et exclusive.Du studio au 4 pièces cabine, dont certains en duplex, la résidence se plie a toutes les envies. Au calme, dans un environnement idyllique ou les nouvelles opportunités d'achat sont rares, chaque appartement est un trésor d'art de vivre.Spacieux, baignes de lumière naturelle, agences avec soin et pares de matériaux de belle facture, tous sauront répondre aux attentes les plus exigeantes en matière de confort et de bien-être. Pour cultiver l'exception, quelques duplex disposent de volumes decuples par d'imposants sejours cathedrale. Pour apprécier en toile de fond le paysage grandiose sur les sommets alentours, chaque appartement dispose d'un extérieur privatif, réservant un juste équilibre entre ouverture et intimité.Dotée d'un espace bien-être avec spa, hammam et bassin de nage, la résidence dispose de tous les agréments d'une destination bien-Être.Ces équipements prémium complètent une palette de services qui sublimeront vos séjours :
Salles de bains équipées de meuble vasque
Pan de mur en lambris bois sapin brosse dans le séjour
Cuisine et placards equipes
Chauffage individuel de type chauffage au sol hydraulique, selon plan avec thermostat d'ambiance programmable et pilotage du chauffage via application
Casier a skis pour chaque appartement avec chauffe-chaussures électrique
Mon 'coup de coeur' pour ce bien : l'emplacement idéal dans la verdure à Combloux offrant des vues sur tous les massifs ainsi que l'accès au village en moins de 15 mn à pied.

Honoraires inclus de 5% TTC à la charge de l'acquéreur. Prix hors honoraires 1 238 095 €. Dans une copropriété de 10 lots. Aucune procédure n'est en cours. DPE en cours. Les informations sur les risques auxquels ce bien est exposé sont disponibles sur le site Géorisques : georisques.gouv.fr. .
Les informations sur les risques auxquels ce bien est exposé sont disponibles sur le site Géorisques : georisques. gouv. fr.

Voir plus

Référence: VA2903-AMI74
Bien en copropriété. Nombre de lots : 10.
Honoraires d'agence de 5% à la charge de l'acquéreur
Barème des honoraires

Prêt immobilier

Vous souhaitez connaître votre capacité d’emprunt et trouver le meilleur crédit immobilier ?
Réaliser une simulation gratuite

Appartement à COMBLOUX
Appartement à COMBLOUX
Appartement à COMBLOUX
Appartement à COMBLOUX
Appartement à COMBLOUX
Appartement à COMBLOUX
Appartement à COMBLOUX
Appartement à COMBLOUX
Appartement à COMBLOUX
Ce site est protégé par reCAPTCHA la Politique de confidentialité et les Conditions d’utilisation de Google s’appliquent.
Obtenir un prêt immobilier au meilleur taux ?

En poursuivant votre navigation sans modifier vos paramètres, vous acceptez l'utilisation de cookies susceptibles de réaliser des statistiques de visite. Cliquez ici pour plus d'informations