Bénéficiez des services de nos partenaires locaux soigneusement sélectionnés
pour vous accompagner dans votre parcours d'achat immobilier

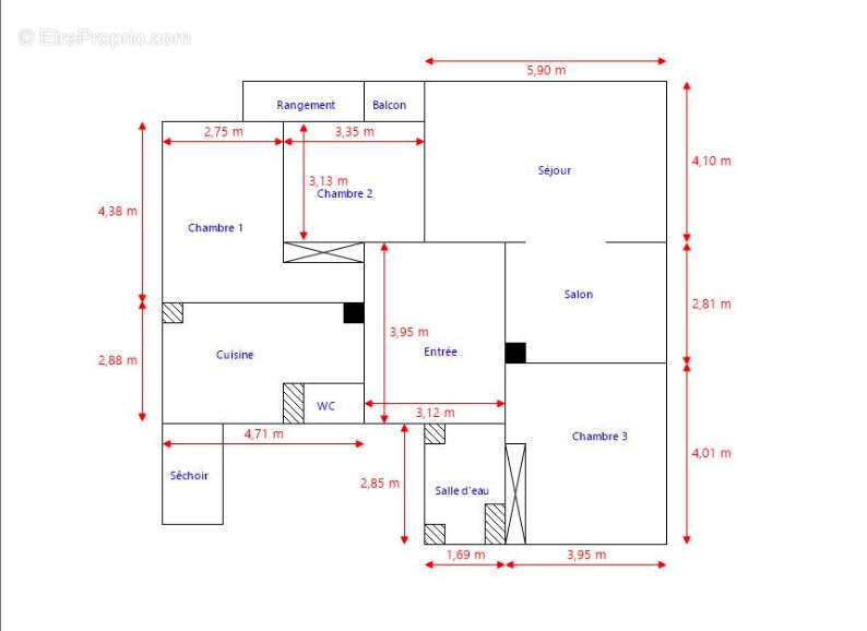
Appartement 106m² à nantes

— Nantes 44100 —
379 000 €
106 m²
5 pièces
parkingascenseur

Nos partenaires locaux
Iad France - Marie-Claude HARDY vous propose : NANTES-LAMORICIÈRE. Situé au 2ème étage avec ascenseur dans une résidence de bon standing, cet appartement séduit par ses beaux volumes et sa luminosité apportée par sa triple exposition
Il se compose d'une entrée desservant un salon, un séjour, une cuisine avec loggia ainsi que trois chambres dont une avec balcon. Une salle d'eau et des toilettes séparées complètent le tout.
Des travaux de rafraichissement permettront de redonner tout son éclat à ce bel appartement et de le personnaliser selon votre mode de vie.
Vous bénéficierez également d'une place de stationnement sécurisée et d'une cave.
Le tout dans un secteur recherché, à proximité immédiate des commerces, écoles et transports.
Contactez-moi pour plus de renseignements ou organiser une visite.



La presente annonce immobiliere vise 3 lots situés dans une copropriété de 250 lots au total et ne faisant l'objet d'aucune procédure en cours citée à l'article L. 721-1 du code de la construction et de l'habitation. Montant moyen mensuel de charges déclaré par le vendeur : 288¤ par mois (soit 3456 ¤ annuel). Honoraires d'agence à la charge de l'acquéreur. Prix honoraires inclus : 379000 euros. Prix hors honoraires : 365000 euros. Honoraires TTC à la charge de l'acquéreur (3,84% du prix du bien hors honoraires) : 14000 euros.
Information d'affichage énergétique sur ce bien : classe ENERGIE D indice 171 et classe CLIMAT D indice 37. Les informations sur les risques auxquels ce bien est exposé, y compris l'obligation légale de débroussaillement, sont disponibles sur le site Géorisques : http://www.georisques.gouv.fr.
La présente annonce immobilière a été rédigée sous la responsabilité éditoriale de Mme Marie-Claude HARDY mandataire indépendant en immobilier (sans détention de fonds), agent commercial de la SAS I@D France immatriculé au RSAC de nantes sous le numéro 832 940 563, titulaire de la carte de démarchage immobilier pour le compte de la société I@D France SAS.
Informations LOI ALUR :
Soumis au régime de copropriété.
Nombre de lots : 250.
Quote part annuelle(moyenne) : 3456 euros.
Honoraires charge vendeur. (gedeon_6727_31622888)
Voir plus

Référence: 1808903
Bien en copropriété. Nombre de lots : 250. Charges de copropriété : 3456 €.
Honoraires à la charge du vendeur.
DPE
A
B
C
D
E
F
G
GES
A
B
C
D
E
F
G

Prêt immobilier

Vous souhaitez connaître votre capacité d’emprunt et trouver le meilleur crédit immobilier ?
Réaliser une simulation gratuite

Photo 1 - Appartement à NANTES
Photo 1
Photo 2 - Appartement à NANTES
Photo 2
Photo 3 - Appartement à NANTES
Photo 3
Photo 4 - Appartement à NANTES
Photo 4
Photo 5 - Appartement à NANTES
Photo 5
Photo 6 - Appartement à NANTES
Photo 6
Photo 7 - Appartement à NANTES
Photo 7
Photo 8 - Appartement à NANTES
Photo 8
Photo 9 - Appartement à NANTES
Photo 9
Ce site est protégé par reCAPTCHA la Politique de confidentialité et les Conditions d’utilisation de Google s’appliquent.
Obtenir un prêt immobilier au meilleur taux ?

En poursuivant votre navigation sans modifier vos paramètres, vous acceptez l'utilisation de cookies susceptibles de réaliser des statistiques de visite. Cliquez ici pour plus d'informations