Bénéficiez des services de nos partenaires locaux soigneusement sélectionnés
pour vous accompagner dans votre parcours d'achat immobilier

Appartement 771m² à clermont-ferrand

— Clermont-Ferrand 63000 —
1 395 000 €
771 m²
parking

Nos partenaires locaux
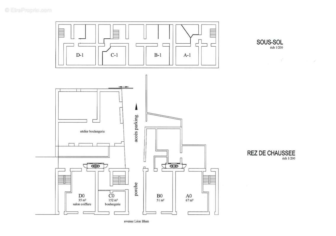
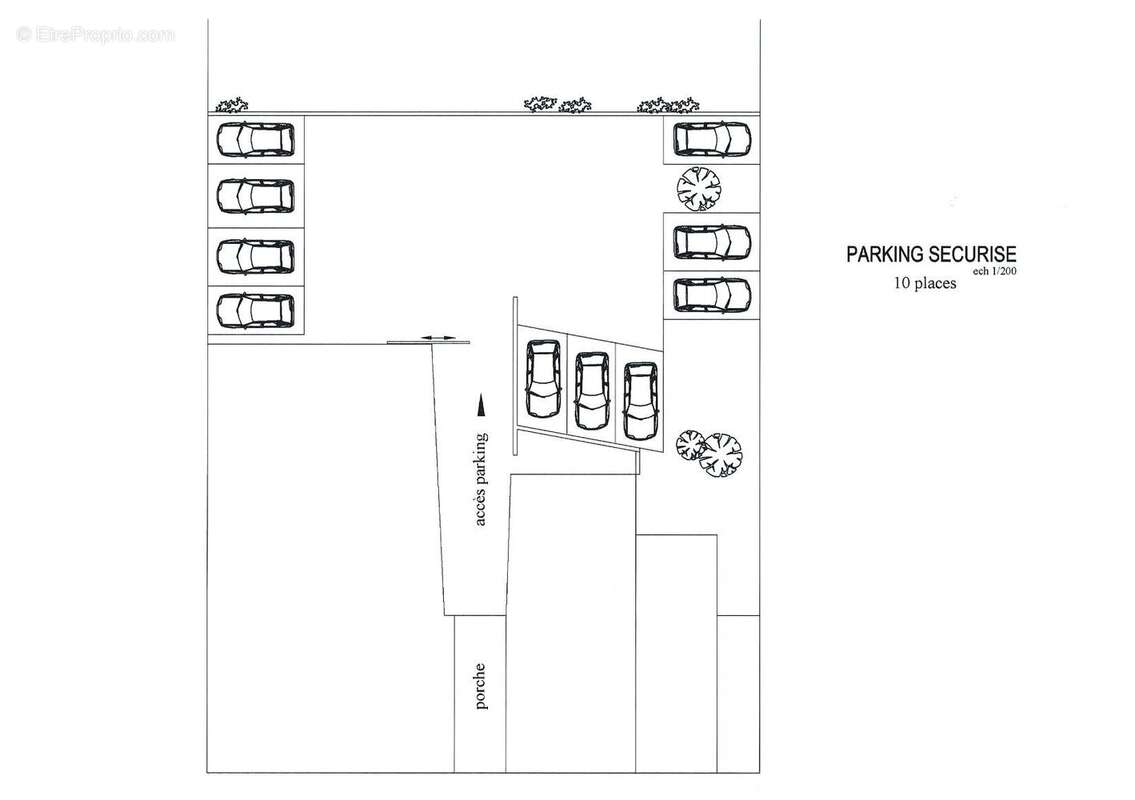
Iad France - Morgan Gomez vous propose : Immeuble de rapport libre de toute occupation (hors salon de coiffure). Situé secteur Léon Blum, proche commerces et services, il développe 771 m² sur 4 niveaux, composés de 12 appartements (T2 / T3 de 25 à 54 m²), 4 locaux commerciaux (30 à 135 m²) et 10 places de stationnement sécurisées. Trois entrées indépendantes desservent les logements, dont la plupart ont été rénovés en 2003. La toiture en bac acier date de 2018 et la façade arrière a été isolée en 2012. Chauffage électrique. Des travaux complémentaires sont à prévoir, mais le bien offre un potentiel de valorisation rare sur Clermont-Ferrand, idéal investisseur.

Honoraires d'agence à la charge du vendeur.
Information d'affichage énergétique sur ce bien : classe ENERGIE E indice 298 et classe CLIMAT B indice 8. Les informations sur les risques auxquels ce bien est exposé, y compris l'obligation légale de débroussaillement, sont disponibles sur le site Géorisques : http://www.georisques.gouv.fr.
La présente annonce immobilière a été rédigée sous la responsabilité éditoriale de M Morgan Gomez mandataire indépendant en immobilier (sans détention de fonds), agent commercial de la SAS I@D France immatriculé au RSAC de CLERMONT-FERRAND sous le numéro 848224291, titulaire de la carte de démarchage immobilier pour le compte de la société I@D France SAS.
Informations LOI ALUR :
Honoraires charge vendeur. (gedeon_6727_32000398)
Voir plus

Référence: 1860500
Honoraires à la charge du vendeur.
DPE
A
B
C
D
E
F
G
GES
A
B
C
D
E
F
G

Prêt immobilier

Vous souhaitez connaître votre capacité d’emprunt et trouver le meilleur crédit immobilier ?
Réaliser une simulation gratuite

Photo 1 - Appartement à CLERMONT-FERRAND
Photo 1
Photo 2 - Appartement à CLERMONT-FERRAND
Photo 2
Photo 3 - Appartement à CLERMONT-FERRAND
Photo 3
Photo 4 - Appartement à CLERMONT-FERRAND
Photo 4
Photo 5 - Appartement à CLERMONT-FERRAND
Photo 5
Photo 6 - Appartement à CLERMONT-FERRAND
Photo 6
Photo 7 - Appartement à CLERMONT-FERRAND
Photo 7
Ce site est protégé par reCAPTCHA la Politique de confidentialité et les Conditions d’utilisation de Google s’appliquent.
Obtenir un prêt immobilier au meilleur taux ?

En poursuivant votre navigation sans modifier vos paramètres, vous acceptez l'utilisation de cookies susceptibles de réaliser des statistiques de visite. Cliquez ici pour plus d'informations