Maison 73m² à la guerche-de-bretagne

— La Guerche-De-Bretagne 35130 —
106 000 €
73 m²
4 pièces

En centre-ville et libre de locataire.

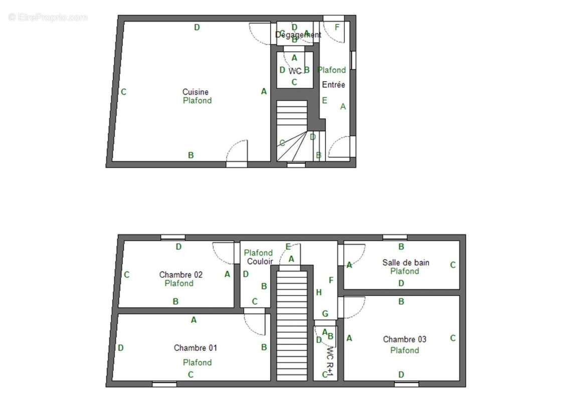
Le bien est composé de : séjour, cuisine ouverte aménagée et équipée neuve, WC indépendant avec lave mains, dégagement.
A l'étage : 3 chambres dont 2 avec placard, une salle de bains et un WC indépendant.

Chauffage électrique.
Le grenier est accessible par l'escalier (VMC, décompression et isolation).
Taxe foncière : environ 650 €.
Toiture en ardoise naturelle + crochets inox (l'ensemble est en très bon état).
Quelques travaux et un changement du calcul du DPE au 1er janvier 2026 devraient permettre de passer en DPE : 'D'.

Ce bien est idéal pour un projet d'investissement ou premier achat de résidence principale.

Situation géographique :
150m du lycée Hôtelier Saint Thérèse.
350m de la Mairie (coeur de ville).
1,2km du Super U et autres commerces.
20km de VITRE. 20km de JANZE.
30km de CHATEAUBRIANT.
80km d'ANGERS.

Honoraires inclus de 6% TTC à la charge de l'acquéreur. Prix hors honoraires 100 000 €. Classe énergie E, Classe climat B Montant estimé des dépenses annuelles d'énergie pour un usage standard : entre 1640.00 € et 2260.00 € sur les années 2021, 2022 et 2023 (abonnements compris). Les informations sur les risques auxquels ce bien est exposé sont disponibles sur le site Géorisques : georisques.gouv.fr.

Votre conseiller ROSINE IMMO WEST : Anthony GUEROIS
Agent commercial (Entreprise individuelle)
RSAC 797887205
Voir plus

Référence: VM2813-DELSOL
Honoraires d'agence de 6% à la charge de l'acquéreur
Barème des honoraires
DPE
A
B
C
D
E
F
G
GES
A
B
C
D
E
F
G

Prêt immobilier

Vous souhaitez connaître votre capacité d’emprunt et trouver le meilleur crédit immobilier ?
Réaliser une simulation gratuite

Maison à LA GUERCHE-DE-BRETAGNE
Maison à LA GUERCHE-DE-BRETAGNE
Maison à LA GUERCHE-DE-BRETAGNE
Maison à LA GUERCHE-DE-BRETAGNE
Maison à LA GUERCHE-DE-BRETAGNE
Maison à LA GUERCHE-DE-BRETAGNE
Maison à LA GUERCHE-DE-BRETAGNE
Ce site est protégé par reCAPTCHA la Politique de confidentialité et les Conditions d’utilisation de Google s’appliquent.
Obtenir un prêt immobilier au meilleur taux ?

En poursuivant votre navigation sans modifier vos paramètres, vous acceptez l'utilisation de cookies susceptibles de réaliser des statistiques de visite. Cliquez ici pour plus d'informations