Bénéficiez des services de nos partenaires locaux soigneusement sélectionnés
pour vous accompagner dans votre parcours d'achat immobilier

Maison à rénover

— Orange 84100 —
340 000 €
300 m² / 950 m²
12 pièces
parkingbalcon/terrassejardinpiscine

Nos partenaires locaux
Grande maison familiale ou 2 logements indépendants – Orange (84100)

À deux pas du centre-ville d'Orange et de la gare, découvrez cette vaste maison de plus de 300 m² implantée sur un terrain clos de 950 m².
Un bien rare, idéal pour un projet familial, un investissement locatif ou encore une division en deux habitations distinctes.

Deux appartements indépendants :

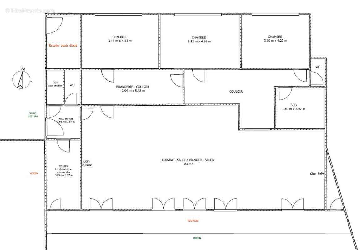
Rez-de-chaussée – 145 m²

Grande pièce de vie lumineuse
Cuisine séparée
3 chambres spacieuses
Véranda de 15 m² ouvrant sur le jardin
Garage de 33 m², cave, piscine enterrée

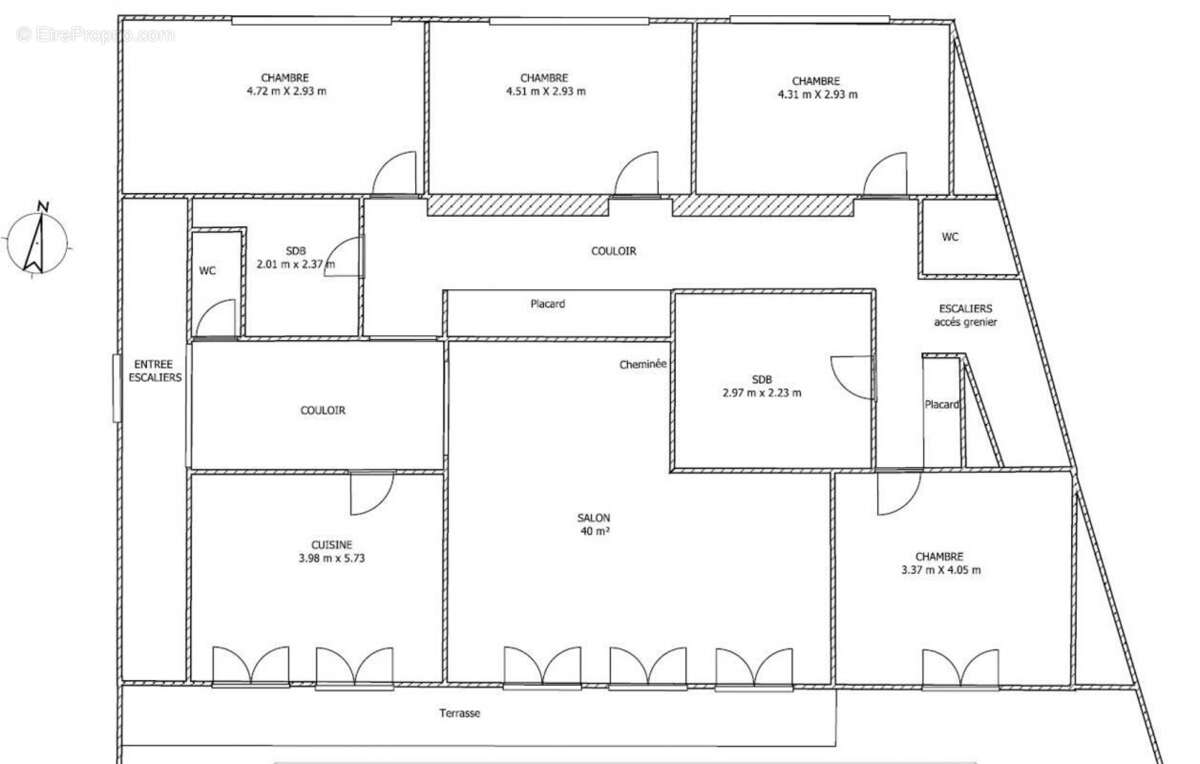
Étage – 155 m²

Salon généreux et cuisine indépendante
4 chambres, 2 salles de bains, 2 WC
Terrasse de 23 m² dont une partie fermée
Grenier de 100 m² aménageables
Cour intérieure entièrement close

Les atouts :

Deux entrées et parkings indépendants
Quartier résidentiel recherché
Proximité immédiate des commodités
Très fort potentiel : résidence principale + location, cohabitation familiale, ou projet de division

À prévoir :
Des travaux de rénovation permettront de révéler tout le potentiel et le charme de cette belle bâtisse.

Localisation : Orange (84100)
Contact : Sébastien Viry – efficity
Les informations sur les risques auxquels ce bien est exposé sont disponibles sur le site Georisque : georisques. gouv. fr
Sebastien Viry - EI - est Agent Commercial mandataire en immobilier, immatriculé au Registre Spécial des Agents Commerciaux du Tribunal de Commerce de Grenoble sous le n°531501377.
Siège social du mandant : effiCity, 48 avenue de Villiers - 75017 PARIS - Société par Actions Simplifiée, société au capital de 132 373,05 euros, immatriculée au RCS Paris 497 617 746 et titulaire de la Carte professionnelle CPI 75[Coordonnées masquées]02 025 - CCI Paris IDF - Caisse de Garantie : GALIAN Assurances 89 rue de la Boétie 75008 Paris
Voir plus

Référence: 197808
Honoraires à la charge du vendeur.
Barème des honoraires
DPE
A
B
C
D
E
F
G
GES
A
B
C
D
E
F
G

Prêt immobilier

Vous souhaitez connaître votre capacité d’emprunt et trouver le meilleur crédit immobilier ?
Réaliser une simulation gratuite

Maison à ORANGE
Maison à ORANGE
Maison à ORANGE
Maison à ORANGE
Maison à ORANGE
Maison à ORANGE
Maison à ORANGE
Maison à ORANGE
Maison à ORANGE
Maison à ORANGE
Maison à ORANGE
Maison à ORANGE
Maison à ORANGE
Maison à ORANGE
Maison à ORANGE
Maison à ORANGE
Maison à ORANGE
Maison à ORANGE
Ce site est protégé par reCAPTCHA la Politique de confidentialité et les Conditions d’utilisation de Google s’appliquent.
Obtenir un prêt immobilier au meilleur taux ?

En poursuivant votre navigation sans modifier vos paramètres, vous acceptez l'utilisation de cookies susceptibles de réaliser des statistiques de visite. Cliquez ici pour plus d'informations