Bénéficiez des services de nos partenaires locaux soigneusement sélectionnés
pour vous accompagner dans votre parcours d'achat immobilier

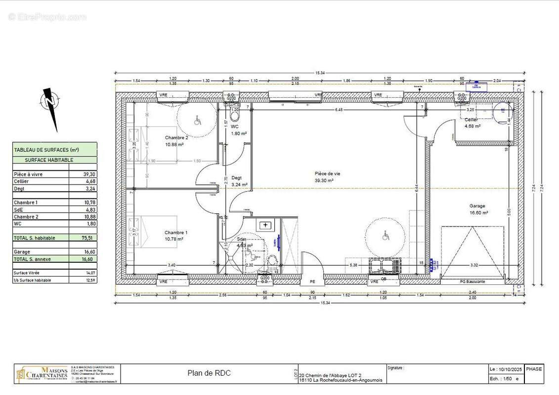
Maison 75m² à la rochefoucauld

— La Rochefoucauld 16110 —
175 000 €
76 m² / 758 m²
3 pièces
parkingbalcon/terrassejardin

Nos partenaires locaux
A VENDRE Maison neuve 75m² habitable avec garage d'environ 17m² sur un terrain d'environ 758m². En cours de construction, disponible à la vente sous 5 mois.
Vivez ici à la campagne tout en étant proche des commerces et commodités.

Maison de plain pieds clef en main prête à décorer composé d'un saloon/séjour avec cuisine ouverte de 39m². 2 Chambres. Salle d'eau équipée, avec douche à l'italienne, meuble vasque et d'un sèche serviette. Un WC indépendant. Un cellier et un garage attenant.

La maison est aux dernières normes environnementales et thermiques. Isolation, étanchéité, exposition, chauffe, production eau chaude... Tout est fait pour que vous consommiez le minimum.

L'ensemble sur un terrain d'environ 758m², raccordé à tous les réseaux : eau, électricité, PTT, tout à l'égout.

Système promotion : Maison livrée clé en main, le paiement s'effectue à la livraison de la maison après réception des travaux.
Eligible PTZ
Exonération de taxe foncière pendant 2 ans.
Vous bénéficiez aussi des frais de notaire réduit à 3%.
Assurance décennale et dommage ouvrage comprise.
Photos non contractuelles.

Classe énergie A, Classe climat A Montant estimé des dépenses annuelles d'énergie pour un usage standard : entre 400.00 € et 590.00 € sur les années 2021, 2022 et 2023 (abonnements compris). Les informations sur les risques auxquels ce bien est exposé sont disponibles sur le site Géorisques : georisques.gouv.fr.
Voir plus

Référence: VM333-MAISONSCHAR16
Honoraires à la charge de l'acquéreur.
DPE
A
B
C
D
E
F
G
GES
A
B
C
D
E
F
G

Prêt immobilier

Vous souhaitez connaître votre capacité d’emprunt et trouver le meilleur crédit immobilier ?
Réaliser une simulation gratuite

Maison à LA ROCHEFOUCAULD
Maison à LA ROCHEFOUCAULD
Maison à LA ROCHEFOUCAULD
Maison à LA ROCHEFOUCAULD
Maison à LA ROCHEFOUCAULD
Ce site est protégé par reCAPTCHA la Politique de confidentialité et les Conditions d’utilisation de Google s’appliquent.
Obtenir un prêt immobilier au meilleur taux ?

En poursuivant votre navigation sans modifier vos paramètres, vous acceptez l'utilisation de cookies susceptibles de réaliser des statistiques de visite. Cliquez ici pour plus d'informations