Appartement neuf stella plage 3 pièces 58 m2

— Cucq 62780 —
238 100 €
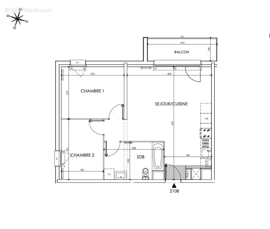
58 m²
3 pièces
parkingbalcon/terrasseascenseur

Succes commercial! Découvrez ce magnifique appartement T3 neuf, idéalement situé à Cucq, à mi-chemin entre Stella et Le Touquet. Parfait pour une vie de famille ou un investissement, ce logement en Vente en l'État Futur d'Achèvement (VEFA) vous offre modernité et confort. Plans et documents sur simple demande au [Coordonnées masquées] Pas de frais d'agence/ prix direct promoteur Frais de notaire réduits Garanties décennales LaForet Signature Le Touquet propose plus de 30 programmes sur la Cote d'Opale. Partenaire privilége d'une dizaine de promoteurs, notre conseiller neuf vous accompagne à chaque étape de votre projet. Copropriété de 33 lots - dont 33 lots habitation. Charges annuelles : 800 euros. Mathieu BOUQUE (EI) Agent Commercial - Numéro RSAC : - .
Voir plus

Référence: 1010
Bien en copropriété. Nombre de lots : 33. Charges de copropriété : 800 €. Procédure en cours.

Prêt immobilier

Vous souhaitez connaître votre capacité d’emprunt et trouver le meilleur crédit immobilier ?
Réaliser une simulation gratuite

Appartement à CUCQ
Appartement à CUCQ
Appartement à CUCQ
Appartement à CUCQ
Ce site est protégé par reCAPTCHA la Politique de confidentialité et les Conditions d’utilisation de Google s’appliquent.
Obtenir un prêt immobilier au meilleur taux ?

En poursuivant votre navigation sans modifier vos paramètres, vous acceptez l'utilisation de cookies susceptibles de réaliser des statistiques de visite. Cliquez ici pour plus d'informations