Appartement 114m² à chavanod

— Chavanod 74650 —
479 000 €
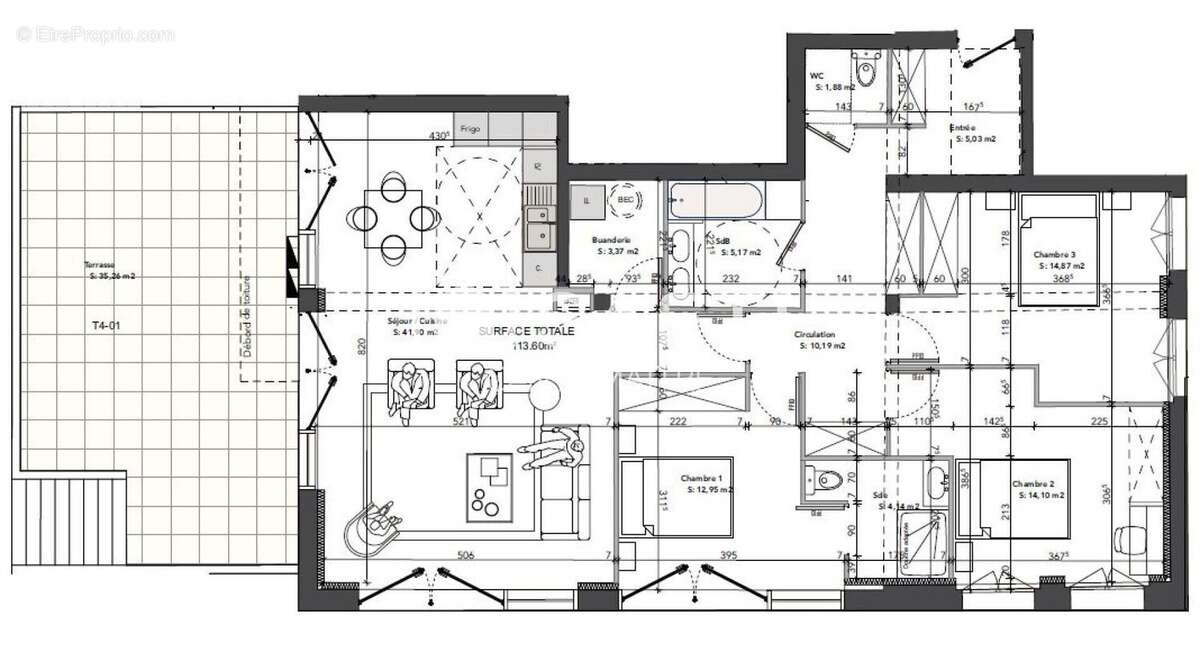
114 m²
4 pièces
parkingbalcon/terrasse

À CHAVANOD, vaste T4 de 114 m² en rez-de-jardin, idéalement situé à deux pas des écoles, commerces, pôle médical, bus et piste cyclable. Vous profiterez d'un cadre paisible, à moins de 10 minutes du centre d'Annecy et de l'autoroute.

Installé dans une ancienne maison de famille divisée en 4 logements, ce bien offre une belle ambiance résidentielle avec deux places de stationnement et une cave.

L'appartement possède une spacieuse pièce de vie de plus de 40 m² orientée ouest, ouvrant sur un agréable jardin privatif de 200 m². Il dispose également d'une suite parentale avec salle d'eau, de deux chambres supplémentaires, d'une salle de bains et de WC séparés. Chauffage électrique.

Une opportunité rare alliant espace, confort et proximité !

Le bien comprend 4 lots, et il est situé dans une copropriété de 4 lots (les charges courantes annuelles moyennes de copropriété sont de 900 ¤ et le syndicat des copropriétaires ne fait pas l'objet d'une procédure citée à l'article L. 721-1 du code de la construction et de l'habitation).

Les informations sur les risques auxquels ce bien est exposé sont disponibles sur le site Géorisques : www.georisques.gouv.fr
Prix de vente honoraires d'agence inclus : 479 000 ¤
Prix de vente hors honoraires d'agence : 456 008 ¤
Honoraires charge acquéreur : 22 992 ¤ soit 5,04 % TTC de la valeur du bien hors honoraires

Contactez votre conseiller SAFTI : Céline MAÎTRE, Tél. : [Coordonnées masquées], E-mail : [Coordonnées masquées] - EI - Agent commercial immatriculé au RSAC de ANNECY sous le numéro 835 142 068.
Informations LOI ALUR :
Soumis au régime de copropriété.
Nombre de lots : 4.
Quote part annuelle(moyenne) : 900 euros.
Honoraires : 5.04 % TTC charge acquéreur.
Prix hors honoraires : 456 008 ¤. (gedeon_26118_32000159)
Voir plus

Référence: 1473739
Bien en copropriété. Nombre de lots : 4. Charges de copropriété : 900 €.
Honoraires d'agence de 5.04% à la charge de l'acquéreur
Barème des honoraires

Prêt immobilier

Vous souhaitez connaître votre capacité d’emprunt et trouver le meilleur crédit immobilier ?
Réaliser une simulation gratuite

Photo 1 - Appartement à CHAVANOD
Photo 1
Photo 2 - Appartement à CHAVANOD
Photo 2
Photo 3 - Appartement à CHAVANOD
Photo 3
Photo 4 - Appartement à CHAVANOD
Photo 4
Photo 5 - Appartement à CHAVANOD
Photo 5
Ce site est protégé par reCAPTCHA la Politique de confidentialité et les Conditions d’utilisation de Google s’appliquent.
Obtenir un prêt immobilier au meilleur taux ?

En poursuivant votre navigation sans modifier vos paramètres, vous acceptez l'utilisation de cookies susceptibles de réaliser des statistiques de visite. Cliquez ici pour plus d'informations