Bénéficiez des services de nos partenaires locaux soigneusement sélectionnés
pour vous accompagner dans votre parcours d'achat immobilier

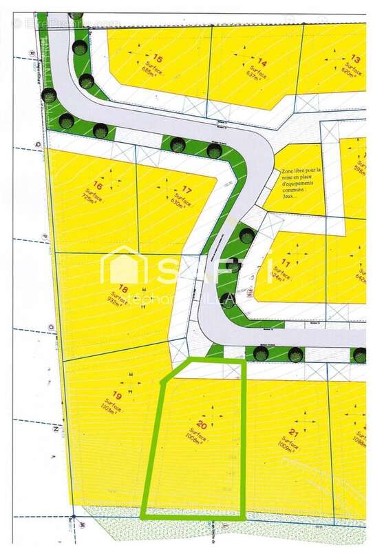
Terrain 1008m² à evrecy

— Evrecy 14210 —
73 000 €
1 008 m²

Nos partenaires locaux
Imaginez votre futur chez-vous dans un cadre idyllique, au calme et avec une vue magnifique à quelques kilomètres d'Evrecy et 20 minutes du périphérique de Caen.

Le lot n°20 concerne un terrain de 1008 m² dans un environnement privilégié et situé au sein d'un lotissement de 22 parcelles, toutes viabilisées en eau, électricité et télécom.

Si le caractère vallonné nécessite un assainissement individuel, il offre cependant une vue dégagée sur la nature !

Laissez cours à vos projets, aux multiples possibilités, grâce au libre choix du constructeur et concevez la maison qui s'intègrera parfaitement dans ce très bel environnement à la vue unique.

Les informations sur les risques auxquels ce bien est exposé sont disponibles sur le site Géorisques : www.georisques.gouv.fr
Prix de vente : 73 000 ¤
Honoraires charge vendeur

Contactez votre conseiller SAFTI : Stéphane TILLARD, Tél. : [Coordonnées masquées], E-mail : [Coordonnées masquées] - EI - Agent commercial immatriculé au RSAC de Caen sous le numéro 938520863.
Informations LOI ALUR :
Honoraires charge vendeur. (gedeon_26118_32118843)
Voir plus

Référence: 1480572
Honoraires à la charge du vendeur.
Barème des honoraires

Prêt immobilier

Vous souhaitez connaître votre capacité d’emprunt et trouver le meilleur crédit immobilier ?
Réaliser une simulation gratuite

Photo 1 - Terrain à EVRECY
Photo 1
Photo 2 - Terrain à EVRECY
Photo 2
Photo 3 - Terrain à EVRECY
Photo 3
Photo 4 - Terrain à EVRECY
Photo 4
Ce site est protégé par reCAPTCHA la Politique de confidentialité et les Conditions d’utilisation de Google s’appliquent.
Obtenir un prêt immobilier au meilleur taux ?

En poursuivant votre navigation sans modifier vos paramètres, vous acceptez l'utilisation de cookies susceptibles de réaliser des statistiques de visite. Cliquez ici pour plus d'informations