Appartement 74m² à bidart

— Bidart 64210 —
390 000 €
74 m²
3 pièces
parkingbalcon/terrasse

Iad France - Florie Chartrou vous propose : À Bidart, dans un quartier résidentiel calme et très apprécié des familles, cet appartement de 74 m² bénéficie d'un emplacement privilégié. Les écoles sont accessibles à pied en moins de dix minutes, et la plage se trouve à seulement 1,5 km, que l'on s'y rende en voiture, à vélo par la voie verte ou tout simplement à pied. Le quartier séduit par son atmosphère conviviale et son côté pratique au quotidien.

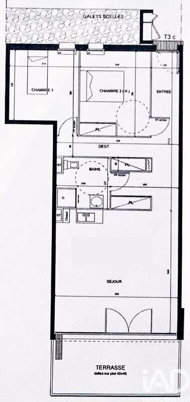
L'appartement se compose d'une belle pièce de vie de 29 m², particulièrement lumineuse grâce à son exposition plein sud, avec cuisine ouverte et accès direct à une terrasse couverte de 16 m² offrant une vue dégagée sur les montagnes.

Il dispose également de deux chambres, d'une salle d'eau fonctionnelle et de très nombreux rangements, et le chauffage au sol qui apportent un vrai confort supplémentaire.

En complément, vous profiterez d'un stationnement fermé en sous-sol ainsi que d'un local à vélo commun. La résidence, calme et bien fréquentée, contribue à faire de ce bien un lieu de vie agréable et recherché.

La presente annonce immobiliere vise 2 lots situés dans une copropriété de 108 lots au total et faisant l'objet d'une ou plusieurs procédures en cours citée à l'article L. 721-1 du code de la construction et de l'habitation. Montant moyen mensuel de charges déclaré par le vendeur : 75¤ par mois (soit 900 ¤ annuel). Honoraires d'agence à la charge du vendeur.
Information d'affichage énergétique sur ce bien : classe ENERGIE B indice 56 et classe CLIMAT B indice 9. Les informations sur les risques auxquels ce bien est exposé, y compris l'obligation légale de débroussaillement, sont disponibles sur le site Géorisques : http://www.georisques.gouv.fr.
La présente annonce immobilière a été rédigée sous la responsabilité éditoriale de Mme Florie Chartrou mandataire indépendant en immobilier (sans détention de fonds), agent commercial de la SAS I@D France immatriculé au RSAC de Bayonne sous le numéro 810743047, titulaire de la carte de démarchage immobilier pour le compte de la société I@D France SAS.
Informations LOI ALUR :
Soumis au régime de copropriété.
Nombre de lots : 108.
Quote part annuelle(moyenne) : 900 euros.
Syndic soumis à une procédure d'alerte.
Honoraires charge vendeur. (gedeon_6727_32118759)
Voir plus

Référence: 1881295
Bien en copropriété. Nombre de lots : 108. Charges de copropriété : 900 €.
Honoraires à la charge du vendeur.
DPE
A
B
C
D
E
F
G
GES
A
B
C
D
E
F
G

Prêt immobilier

Vous souhaitez connaître votre capacité d’emprunt et trouver le meilleur crédit immobilier ?
Réaliser une simulation gratuite

Photo 1 - Appartement à BIDART
Photo 1
Photo 2 - Appartement à BIDART
Photo 2
Photo 3 - Appartement à BIDART
Photo 3
Photo 4 - Appartement à BIDART
Photo 4
Photo 5 - Appartement à BIDART
Photo 5
Photo 6 - Appartement à BIDART
Photo 6
Photo 7 - Appartement à BIDART
Photo 7
Photo 8 - Appartement à BIDART
Photo 8
Photo 9 - Appartement à BIDART
Photo 9
Ce site est protégé par reCAPTCHA la Politique de confidentialité et les Conditions d’utilisation de Google s’appliquent.
Obtenir un prêt immobilier au meilleur taux ?

En poursuivant votre navigation sans modifier vos paramètres, vous acceptez l'utilisation de cookies susceptibles de réaliser des statistiques de visite. Cliquez ici pour plus d'informations