Bénéficiez des services de nos partenaires locaux soigneusement sélectionnés
pour vous accompagner dans votre parcours d'achat immobilier

Maison 42m² à avon

— Avon 77210 —
199 000 €
42 m²
2 pièces
parking

Nos partenaires locaux
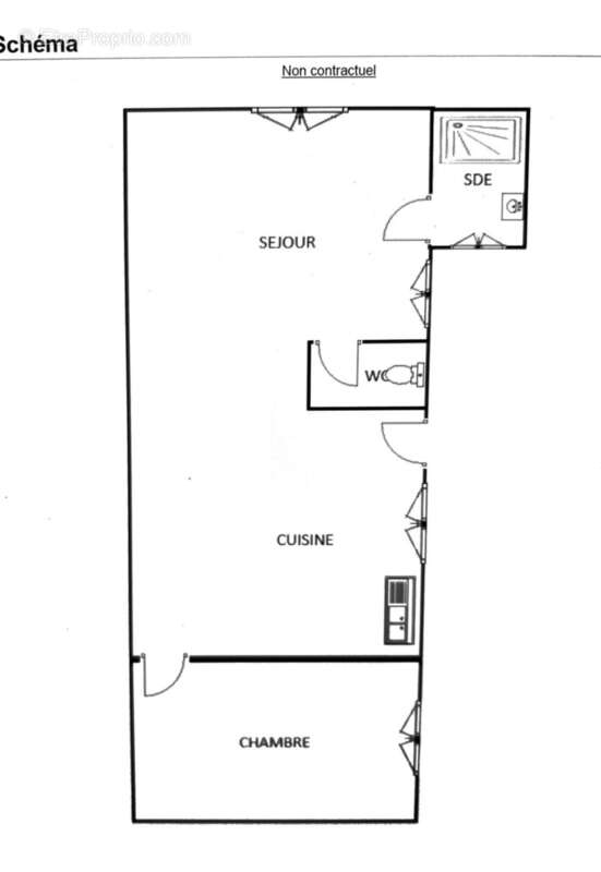
Sous compromis : VIEIL AVON - Maison de type F2 de 42m² entièrement rénovée avec climatisation réversible, avec un bûcher de 6m², une place de parking privative et un grenier de 16m².
.
DPE en C.
.
IDEAL PROFESSION LIBERALE car possibilité de réouvrir une ancienne porte côté rue pour recevoir du public.
.
Maison de plein pied de 42m² disposant d'un salon lumineux de 16,23 m²orienté Sud Est, d'une cuisine aménagée et équipée de 13.84m², d'une chambre de 9m², d'une salle d'eau, et d'un wc indépendant..
.
Double vitrage, Pompe à chaleur (climatisation/chauffage réversible), électricité aux normes et DPE en C. Electricité aux normes.
.
Un grenier de 16m² et un bucher de 6m², ainsi qu'une place de parking privative complètent ce bien.
.
Cette maison est en copropriété avec de faibles charges de 44 € par mois soit 530 € par an.
.

Honoraires à la charge du vendeur. Dans une copropriété de 11 lots. Quote-part moyenne du budget prévisionnel 530 €/an. Aucune procédure n'est en cours. Classe énergie C, Classe climat A Montant estimé des dépenses annuelles d'énergie pour un usage standard : entre 610.00 € et 890.00 € sur les années 2021, 2022 et 2023 (abonnements compris). Les informations sur les risques auxquels ce bien est exposé sont disponibles sur le site Géorisques : georisques.gouv.fr.
Voir plus

Référence: VM389-DLVIMMO
Bien en copropriété. Nombre de lots : 11. Charges de copropriété : 530 €.
Honoraires à la charge du vendeur.
Barème des honoraires
DPE
A
B
C
D
E
F
G
GES
A
B
C
D
E
F
G

Prêt immobilier

Vous souhaitez connaître votre capacité d’emprunt et trouver le meilleur crédit immobilier ?
Réaliser une simulation gratuite

Maison à AVON
Maison à AVON
Maison à AVON
Maison à AVON
Maison à AVON
Maison à AVON
Maison à AVON
Maison à AVON
Ce site est protégé par reCAPTCHA la Politique de confidentialité et les Conditions d’utilisation de Google s’appliquent.
Obtenir un prêt immobilier au meilleur taux ?

En poursuivant votre navigation sans modifier vos paramètres, vous acceptez l'utilisation de cookies susceptibles de réaliser des statistiques de visite. Cliquez ici pour plus d'informations