Bénéficiez des services de nos partenaires locaux soigneusement sélectionnés
pour vous accompagner dans votre parcours d'achat immobilier

Appartement 85m² à paris-19e

— Paris-19e 75019 —
585 000 €
86 m²
4 pièces
parkingbalcon/terrasseascenseur

Nos partenaires locaux
Découvrez notre vidéo immersive, très utile pour visiter le bien !
Dans une agréable résidence sécurisée et entretenue, avec grands espaces verts, situé à 2 pas du '104' et du M° Riquet.
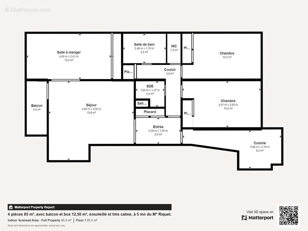
Au 4ème étage avec ascenseur d'un immeuble récent (1975) en très bon état, bel appartement familial de 85,80 m² Carrez, avec balcon plein sud sur vue et jardin, bon plan traversant, et au calme absolu.
Actuellement grand double-salon ensoleillé avec balcon, de 35 m² (salon 21,33 m² + salle à manger 14,56 m² (c'était avant une 3ème chambre indépendante)), 2 chambres de 11,90 m² et 11,88 m², avec placards intégrés, une grande cuisine indépendante (9,52 m²) avec fenêtre, 2 salles de bains (une avec douche), un WC indépendant, et de nombreux placards intégrés dans toutes les pièces et à l'entrée (4,75 m²).
+ Cave de 3 m²
+ Box de 12,50 m²
Appartement très bien entretenu, sans gros travaux majeures (excepté le sol carrelage, en très bon état mais démodé).

Honoraires à la charge du vendeur. Dans une copropriété de 247 lots. Aucune procédure n'est en cours. Classe énergie D, Classe climat D Montant moyen estimé des dépenses annuelles d'énergie pour un usage standard, établi à partir des prix de l'énergie de l'année 2021 : entre 754.00 et 1020.00 €. Les informations sur les risques auxquels ce bien est exposé sont disponibles sur le site Géorisques : georisques.gouv.fr.

Votre conseiller Loft App'Art & Co : Fondateur - Viet Nam HOANG
Carte T CPI75[Coordonnées masquées]00813
RCP 500643218
Voir plus

Référence: VA3587-LOFTAPPART
Bien en copropriété. Nombre de lots : 247.
Honoraires à la charge du vendeur.
Barème des honoraires
DPE
A
B
C
D
E
F
G
GES
A
B
C
D
E
F
G

Prêt immobilier

Vous souhaitez connaître votre capacité d’emprunt et trouver le meilleur crédit immobilier ?
Réaliser une simulation gratuite

Appartement à PARIS-19E
Appartement à PARIS-19E
Appartement à PARIS-19E
Appartement à PARIS-19E
Appartement à PARIS-19E
Appartement à PARIS-19E
Appartement à PARIS-19E
Appartement à PARIS-19E
Appartement à PARIS-19E
Ce site est protégé par reCAPTCHA la Politique de confidentialité et les Conditions d’utilisation de Google s’appliquent.
Obtenir un prêt immobilier au meilleur taux ?

En poursuivant votre navigation sans modifier vos paramètres, vous acceptez l'utilisation de cookies susceptibles de réaliser des statistiques de visite. Cliquez ici pour plus d'informations