Bénéficiez des services de nos partenaires locaux soigneusement sélectionnés
pour vous accompagner dans votre parcours d'achat immobilier

Cannes - coteaux : appartement 2 pièces avec balcon au dernier étage

— Cannes 06400 —
180 000 €
37 m²
2 pièces
balcon/terrasse

Nos partenaires locaux
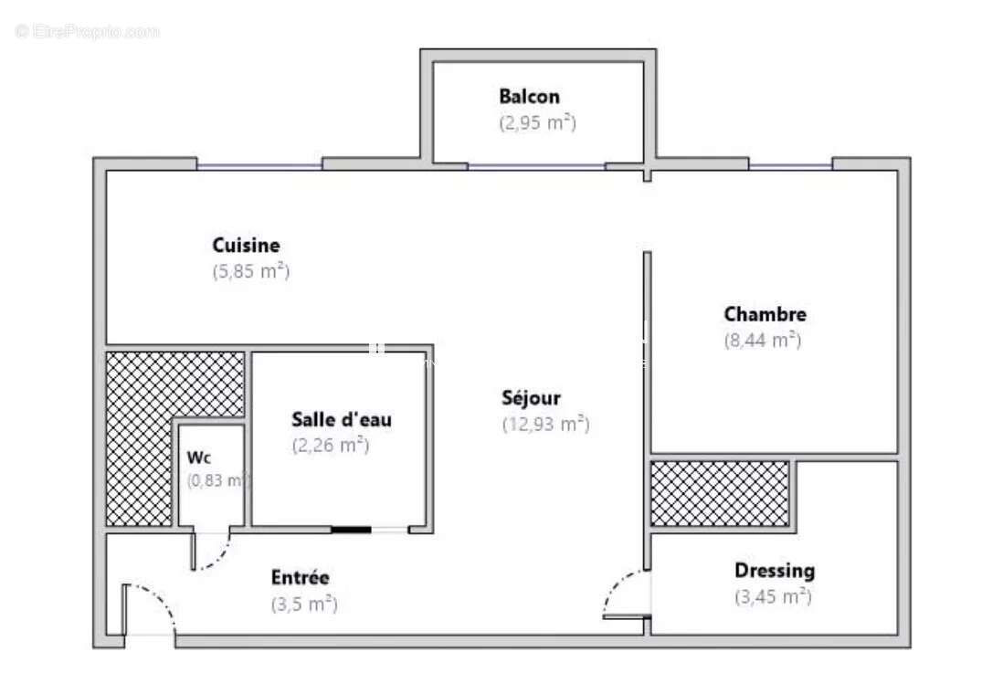
A Cannes, quartier des Coteaux, au quatrième et dernier étage d'un immeuble sans ascenseur, cet appartement 2 pièces a été récemment rénové.

Il se compose d'une entrée, séjour donnant sur un balcon exposé Ouest, cuisine ouverte, chambre, et dressing. Ainsi qu'une cave en sous-sol.

Bien présenté par Agences de France par délégation.
Agences de France – SIREN : 899413603 – Titulaire de la carte T : 29[Coordonnées masquées]00009 non habilité à percevoir des fonds
Voir plus

Référence: getkey_u_496961249
Bien en copropriété. Nombre de lots : 30. Charges de copropriété : 13 €.
Honoraires d'agence de 9% à la charge de l'acquéreur
DPE
A
B
C
D
E
F
G
GES
A
B
C
D
E
F
G

Prêt immobilier

Vous souhaitez connaître votre capacité d’emprunt et trouver le meilleur crédit immobilier ?
Réaliser une simulation gratuite

Appartement à CANNES
Appartement à CANNES
Appartement à CANNES
Appartement à CANNES
Appartement à CANNES
Appartement à CANNES
Appartement à CANNES
Appartement à CANNES
Appartement à CANNES
Appartement à CANNES
Appartement à CANNES
Appartement à CANNES
Appartement à CANNES
Ce site est protégé par reCAPTCHA la Politique de confidentialité et les Conditions d’utilisation de Google s’appliquent.
Obtenir un prêt immobilier au meilleur taux ?

En poursuivant votre navigation sans modifier vos paramètres, vous acceptez l'utilisation de cookies susceptibles de réaliser des statistiques de visite. Cliquez ici pour plus d'informations